Maison neuve à
Panilleuse
(27510) Référence :
CG2436891_1
Prix du projet : Maison avec Terrain
prix 247 500 €
- 4 pièces
- 2 chambres
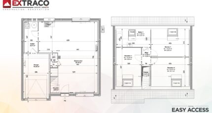
- Surface maison 81 m2
Panilleuse : maison de 4 pièces (81 m²) à vendre
IDÉALEMENT SITUÉE - MAISON 4 PIÈCES NEUVE
À vendre : à côté de la gare de Vernon-Giverny (Paris à 1 h avec le Transilien J), découvrez, idéalement située dans Panilleuse (27510), cette maison de 4 pièces de 81 m². Son intérieur offre deux chambres, une cuisine et une salle de bains.
Le terrain du bien s'étend sur 1 000 m².
Il s'agit d'une maison de 2 niveaux. Elle est neuve.
Cette maison se trouve dans un secteur prisé. Niveau transports en commun, il y a la gare Vernon-Giverny à moins de 10 minutes en voiture. On trouve un tennis à quelques minutes à peine.
Son prix de vente est de 247 500 €.
Prenez contact avec GOITA Carole pour toute question sur la maison, sur les modalités de vente ou sur les démarches à suivre. Extraco Construction Rénovation Les Andelys est là pour vous accompagner dans tous vos projets immobiliers.
Mentions légales
Terrain proposé par un partenaire foncier selon disponibilités et autorisation de publicité au prix de 75 000 €. Hors droit d'enregistrement et frais de notaire. Terrain + Maison proposés au prix de 247 500 € (Hors branchements et raccordements, papiers peints, peintures, revêtement de sol dans les chambres. Tarif modifiable sans préavis). Etiquette énergie : A. Différents modèles disponibles pour ce terrain. Assurances et garanties du constructeur (RC professionnelle, décennale, dommage ouvrage, garantie de remboursement de l'acompte, livraison à prix et délai convenu) : https://www.lesmaisonsextraco.fr/informations-legales/.Agence Maisons Extraco de Les Andelys (27700)
- Téléphone :
- 02 32 51 77 46
- Adressse :
- 51 Avenue de la République
27700 Les Andelys, France
