Maison neuve à
Pîtres
(27590) Référence :
JT-PDA-SEM49-1-3_2
Prix du projet : Maison avec Terrain
prix 172 154 €
- 3 pièces
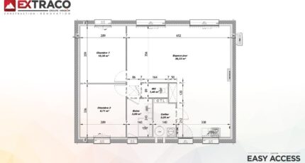
- 2 chambres
- Surface maison 65 m2
VENTE d'une maison de 3 pièces (65 m²) à proximité de Pîtres, sur la commune du Manoir
Idéalement située - À découvrir au Manoir (27590) : maison neuve 3 pièces à vendre, 65 m² sur 426 m² de terrain. Son intérieur est composé de deux chambres, d'une cuisine et d'une salle de bains.
Proche gares, École Primaire Jacques Prévert, bibliothèque. Accès autoroutes A13 et A154 à 10 km. Rouen à 15 km.
Le prix de vente de cette maison de 3 pièces est de 172 154 €.
Contactez notre agence (Julien THOMAS : 06-69-32-53-30) pour toute question sur la maison. Les Maisons Extraco Pont-de-l'Arche est là pour vous accompagner dans toutes vos démarches.
Mentions légales
Terrain proposé par un partenaire foncier selon disponibilités et autorisation de publicité au prix de 69 500 €. Hors droit d'enregistrement et frais de notaire. Maison proposée, avec un contrat de construction de maison individuelle, dans le cadre de la loi du 19/12/1990, au prix de 102 654 € (Hors branchements et raccordements, papiers peints, peintures, revêtement de sol dans les chambres, qui sont chiffrés dans les travaux qui restent à charge du client. Tarif modifiable sans préavis). Étiquette énergie : A. Différents modèles disponibles pour ce terrain. Assurances et garanties du constructeur comprises (RC professionnelle, décennale, dommage ouvrage).Agence Maisons Extraco de Pont-de-l'Arche (27340)
- Téléphone :
- 02 35 02 19 99
- Adressse :
- 26 rue près Roosevelt
27340 Pont-de-l'Arche, France
