Maison neuve à
Pîtres
(27590) Référence :
JT-PDA-SEM49-1-3_3
Prix du projet : Maison avec Terrain
prix 187 224 €
- 4 pièces
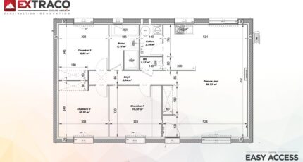
- 3 chambres
- Surface maison 80 m2
Proche Pîtres : maison F4 (80 m²) en vente, sur la commune du Manoir
Idéalement située - À vendre au Manoir (27590) : maison neuve 4 pièces de 80 m² sur un terrain de 426 m². Conçue de plain-pied, elle comporte trois chambres, une cuisine et une salle de bains.
À proximité : gares, École Primaire Jacques Prévert, bibliothèque. Autoroutes A13 et A154 accessibles à 10 km. Rouen à 15 km.
Cette maison de 4 pièces est à vendre pour la somme de 187 224 €.
Contactez notre agence (Julien THOMAS : 06-69-32-53-30) pour plus d'informations sur la maison, sur les modalités de vente ou sur les démarches à suivre. Les Maisons Extraco Pont-de-l'Arche est là pour vous accompagner à toutes les étapes de l'achat.
Mentions légales
Terrain proposé par un partenaire foncier selon disponibilités et autorisation de publicité au prix de 69 500 €. Hors droit d'enregistrement et frais de notaire. Maison proposée, avec un contrat de construction de maison individuelle, dans le cadre de la loi du 19/12/1990, au prix de 117 724 € (Hors branchements et raccordements, papiers peints, peintures, revêtement de sol dans les chambres, qui sont chiffrés dans les travaux qui restent à charge du client. Tarif modifiable sans préavis). Étiquette énergie : A. Différents modèles disponibles pour ce terrain. Assurances et garanties du constructeur comprises (RC professionnelle, décennale, dommage ouvrage).Agence Maisons Extraco de Pont-de-l'Arche (27340)
- Téléphone :
- 02 35 02 19 99
- Adressse :
- 26 rue près Roosevelt
27340 Pont-de-l'Arche, France
