Maison neuve à
Pont-l'Évêque
(14130) Référence :
MP2348791_3
Prix du projet : Maison avec Terrain
prix 220 000 €
- 4 pièces
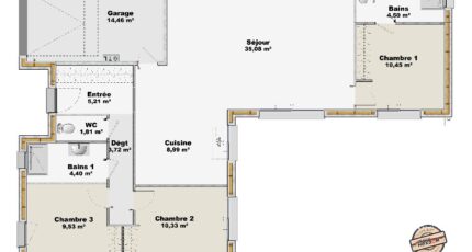
- 3 chambres
- Surface maison 94 m2
Pont-l'Évêque : maison de 4 pièces (94 m²) en vente
CENTRE-VILLE - MAISON 4 PIÈCES NEUVE
À 14 km de la Manche et à 24 km du Havre, votre agence Extraco construction rénovation Pont-l'Évêque est heureuse de vous proposer cette maison de 4 pièces de plain-pied de 94 m² et de 612 m² de terrain en vente, dans le centre-ville de Pont-l'Évêque (14130).
Son intérieur se divise en trois chambres, une cuisine et deux salles de bains. Cette maison est neuve.
On trouve trois établissements scolaires à moins de 10 minutes à pied et dont le Collège Gustave Flaubert et l'École Élémentaire Privée Bon Pasteur. Côté transports, il y a la gare Pont-l'Évêque juste à côté. Les autoroutes A13, A132 et A29 sont accessibles à moins de 10 km. On trouve un tennis, une bibliothèque, des boulangeries, des commerces, une supérette, une poissonnerie et trois boucheries-charcuteries à proximité. Ne manquez pas le marché Place Foch tous les lundis matin.
Elle est à vendre pour la somme de 220 000 €.
Prenez contact avec notre constructeur (Marion PAIN : 06-67-04-73-85) pour plus d'informations sur la maison ou sur les modalités de vente.
Mentions légales
Terrain proposé par un partenaire foncier selon disponibilités et autorisation de publicité au prix de 85 000 €. Hors droit d'enregistrement et frais de notaire. Maison proposée, avec un contrat de construction de maison individuelle, dans le cadre de la loi du 19/12/1990, au prix de 135 000 € (Hors branchements et raccordements, papiers peints, peintures, revêtement de sol dans les chambres, qui sont chiffrés dans les travaux qui restent à charge du client. Tarif modifiable sans préavis). Étiquette énergie : A. Différents modèles disponibles pour ce terrain. Assurances et garanties du constructeur comprises (RC professionnelle, décennale, dommage ouvrage).Agence Maisons Extraco de Pont-l'Évêque (14130)
- Téléphone :
- 02 31 64 00 00
- Adressse :
- 20 rue Hamelin
14130 Pont-l'Évêque, France
