Maison neuve à
Port-Mort
(27940) Référence :
CG2376970_3
Prix du projet : Maison avec Terrain
prix 238 700 €
- 4 pièces
- 3 chambres
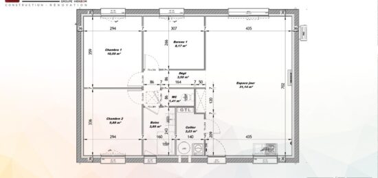
- Surface maison 75 m2
Port-Mort : maison T4 (75 m²) à vendre
EMPLACEMENT PRIVILÉGIÉ - MAISON 4 PIÈCES NEUVE
À vendre : à proximité du Transilien J (gare de Vernon-Giverny, 1 h de Paris), nous vous proposons, bénéficiant d'un emplacement d'exception dans Port-Mort (27940), cette maison de 4 pièces de plain-pied de 75 m² et de 700 m² de terrain.
Elle propose trois chambres, une cuisine et une salle de bains. Cette maison est neuve.
Cette maison se situe dans un quartier prisé. On y trouve une école primaire. Niveau transports, il y a deux gares (Gaillon-Aubevoye et Vernon-Giverny) à moins de 10 minutes en voiture. Il y a un accès à l'autoroute A13 à 8 km et Évreux se situe à 26 km. On trouve une boulangerie, un commerce et une boucherie-charcuterie à proximité.
Elle est à vendre pour la somme de 238 700 €.
Contactez Carole GOITA (06-50-10-84-99) pour tout renseignement sur la maison ou sur les démarches à suivre. Concrétisez vos projets immobiliers avec Extraco Construction Rénovation Les Andelys.
Mentions légales
Terrain proposé par un partenaire foncier selon disponibilités et autorisation de publicité au prix de 62 500 €. Hors droit d'enregistrement et frais de notaire. Terrain + Maison proposés au prix de 176 200 € (Hors branchements et raccordements, papiers peints, peintures, revêtement de sol dans les chambres. Tarif modifiable sans préavis). Etiquette énergie : A. Différents modèles disponibles pour ce terrain. Assurances et garanties du constructeur (RC professionnelle, décennale, dommage ouvrage, garantie de remboursement de l'acompte, livraison à prix et délai convenu) : https://www.lesmaisonsextraco.fr/informations-legales/.Agence Maisons Extraco de Les Andelys (27700)
- Téléphone :
- 02 32 51 77 46
- Adressse :
- 51 Avenue de la République
27700 Les Andelys, France
