Maison neuve à
Port-Mort
(27940) Référence :
GBLAS06_01-2_1
Prix du projet : Maison avec Terrain
prix 196 600 €
- 4 pièces
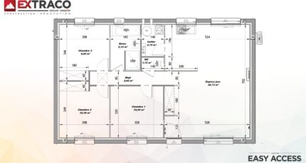
- 3 chambres
- Surface maison 80 m2
VENTE d'une maison de 4 pièces (80 m²) à Port-Mort
IDÉALEMENT SITUÉE - MAISON 4 PIÈCES NEUVE
À deux pas de la gare de Vernon-Giverny (Paris à 1 h avec le Transilien J), nous vous proposons cette maison de 4 pièces de plain-pied de 80 m² idéalement située dans Port-Mort (27940).
Conçue de plain-pied, elle inclut trois chambres, une cuisine et une salle de bains. Cette maison est neuve.
Le terrain de la propriété est de 782 m².
La maison est située dans un quartier convoité. Une école primaire y est implantée. Côté transports en commun, il y a deux gares (Gaillon-Aubevoye et Vernon-Giverny) à moins de 10 minutes en voiture. L'autoroute A13 est accessible à 8 km et Évreux se trouve à 26 km. Il y a une boulangerie, un commerce et une boucherie-charcuterie à quelques minutes du bien.
Elle est proposée à l'achat pour 196 600 €.
N'hésitez pas à prendre contact avec Gilles BOREAU (02-32-51-77-46) pour tout renseignement sur la maison ou sur les démarches à suivre. Concrétisez vos projets immobiliers avec Les Maisons Extraco Les Andelys.
Mentions légales
Terrain proposé par un partenaire foncier selon disponibilités et autorisation de publicité au prix de 62 500 €. Hors droit d'enregistrement et frais de notaire. Terrain + Maison proposés au prix de 134 100 € (Hors branchements et raccordements, papiers peints, peintures, revêtement de sol dans les chambres. Tarif modifiable sans préavis). Etiquette énergie : A. Différents modèles disponibles pour ce terrain. Assurances et garanties du constructeur (RC professionnelle, décennale, dommage ouvrage, garantie de remboursement de l'acompte, livraison à prix et délai convenu) : https://www.lesmaisonsextraco.fr/informations-legales/.Agence Maisons Extraco de Les Andelys (27700)
- Téléphone :
- 02 32 51 77 46
- Adressse :
- 51 Avenue de la République
27700 Les Andelys, France
