Maison neuve à
Port-Mort
(27940) Référence :
GBLAS09_01-2_2
Prix du projet : Maison avec Terrain
prix 215 000 €
- 4 pièces
- 2 chambres
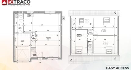
- Surface maison 81 m2
Maison de 4 pièces (81 m²) à vendre à Port-Mort
IDÉALEMENT SITUÉE - MAISON 4 PIÈCES NEUVE
À quelques minutes du Transilien J (gare de Vernon-Giverny, 1 h de Paris), nous sommes ravis de vous présenter cette maison de 4 pièces de 81 m² en vente idéalement située dans Port-Mort (27940).
C'est une maison de 2 niveaux. Son intérieur comporte deux chambres, une cuisine et une salle de bains. Cette maison est neuve.
Le terrain du bien est de 782 m².
La propriété se situe dans un secteur convoité. On y trouve une école primaire. Niveau transports, il y a deux gares (Gaillon-Aubevoye et Vernon-Giverny) à moins de 10 minutes en voiture. Il y a une boulangerie, un commerce et une boucherie-charcuterie dans les environs.
Son prix de vente est de 215 000 €.
Prenez contact avec Gilles BOREAU pour toute information sur la maison ou sur les démarches à suivre. Concrétisez vos projets immobiliers avec Les Maisons Extraco Les Andelys.
Eligible au prêt à taux zéro
Mentions légales
Terrain proposé par un partenaire foncier selon disponibilités et autorisation de publicité au prix de 65 000 €. Hors droit d'enregistrement et frais de notaire. Terrain + Maison proposés au prix de 215 000 € (Hors branchements et raccordements, papiers peints, peintures, revêtement de sol dans les chambres. Tarif modifiable sans préavis). Etiquette énergie : A. Différents modèles disponibles pour ce terrain. Assurances et garanties du constructeur (RC professionnelle, décennale, dommage ouvrage, garantie de remboursement de l'acompte, livraison à prix et délai convenu) : https://www.lesmaisonsextraco.fr/informations-legales/.Agence Maisons Extraco de Les Andelys (27700)
- Téléphone :
- 02 32 51 77 46
- Adressse :
- 51 Avenue de la République
27700 Les Andelys, France
