Maison neuve à
Portes
(27190) Référence :
AK2415799_1
Prix du projet : Maison avec Terrain
prix 169 000 €
- 3 pièces
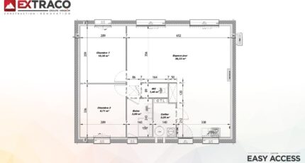
- 2 chambres
- Surface maison 65 m2
VENTE : maison de 3 pièces (65 m²) à Portes
MAISON 3 PIÈCES NEUVE - PROCHE D'ÉVREUX
En vente : située à deux pas d'Évreux, Les Maisons Extraco Gravigny vous présente cette maison de 3 pièces de plain-pied de 65 m² à Portes (27190).
Son intérieur compte deux chambres, une cuisine ouverte sur le séjour et une salle de bains. Cette maison est neuve.
Le terrain du bien est de 1 200 m².
Une école élémentaire est implantée dans le quartier. Niveau transports, on trouve les gares Conches-en-Ouche, La Bonneville-sur-Iton et Romilly-la-Puthenaye à moins de 10 minutes en voiture. Les nationales N13 et N154 sont accessibles à moins de 17 km.
Elle est proposée à l'achat pour 169 000 €.
Prenez contact avec Aurélie KTARI (tél : 06-28-09-94-39) pour tout renseignement sur la maison, sur les démarches à suivre ou sur les modalités de vente. Faites de vos projets immobiliers une réalité avec Les Maisons Extraco Gravigny.
Mentions légales
Terrain proposé par un partenaire foncier selon disponibilités et autorisation de publicité au prix de 40 000 €. Hors droit d'enregistrement et frais de notaire. Terrain + Maison proposés au prix de 169 000 € (Hors branchements et raccordements, papiers peints, peintures, revêtement de sol dans les chambres. Tarif modifiable sans préavis). Etiquette énergie : A. Différents modèles disponibles pour ce terrain. Assurances et garanties du constructeur (RC professionnelle, décennale, dommage ouvrage, garantie de remboursement de l'acompte, livraison à prix et délai convenu) : https://www.lesmaisonsextraco.fr/informations-legales/.Agence Maisons Extraco de Gravigny (27930)
- Téléphone :
- 02 32 31 20 44
- Adressse :
- 165 Avenue Aristide Briand
27930 Gravigny, France
