Maison neuve à
Raffetot
(76210) Référence :
SL-yvetotraffetot48_1
Prix du projet : Maison avec Terrain
prix 224 630 €
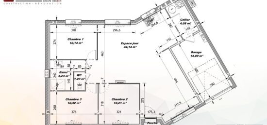
- 4 pièces
- 3 chambres
- Surface maison 81 m2
Bolleville : maison F4 (81 m²) à construire.
EMPLACEMENT PRIVILÉGIÉ - MAISON 4 PIÈCES NEUVE
En vente à 15 km de la Manche, découvrez cette maison de 4 pièces de 81 m² et de 677 m² de terrain bénéficiant d'un emplacement d'exception dans Bolleville (76210). Son intérieur dispose de trois chambres, d'une cuisine et d'une salle de bains.
Cette maison possède 2 niveaux. Elle est neuve.
La maison se situe dans un secteur prisé. On y trouve une école primaire. Côté transports en commun, il y a deux gares (Foucart-Alvimare et Bolbec-Nointot) à moins de 10 minutes en voiture. L'autoroute A29 est accessible à 7 km. On trouve un commerce à quelques minutes.
Son prix de vente est de 224 630 €.
Contactez notre agence (Sébastien LENFANT : 06-66-42-53-33) pour tout renseignement sur la propriété ou sur les démarches à suivre. Concrétisez vos projets immobiliers avec Extraco construction rénovation Yvetot.
Mentions légales
Terrain proposé par un partenaire foncier selon disponibilités et autorisation de publicité au prix de 60 500 €. Hors droit d'enregistrement et frais de notaire. Maison proposée, avec un contrat de construction de maison individuelle, dans le cadre de la loi du 19/12/1990, au prix de 164 130 € (Hors branchements et raccordements, papiers peints, peintures, revêtement de sol dans les chambres, qui sont chiffrés dans les travaux qui restent à charge du client. Tarif modifiable sans préavis). Étiquette énergie : A. Différents modèles disponibles pour ce terrain. Assurances et garanties du constructeur comprises (RC professionnelle, décennale, dommage ouvrage).Agence Maisons Extraco de Yvetot (76190)
- Téléphone :
- 02 35 56 53 46
- Adressse :
- Avenue du Général Leclerc
76190 Yvetot, France
