Maison neuve à
Riville
(76540) Référence :
SL-yvetotriville48_2
Prix du projet : Maison avec Terrain
prix 202 300 €
- 4 pièces
- 3 chambres
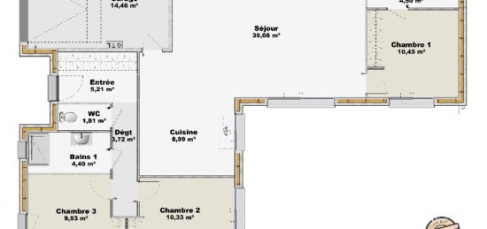
- Surface maison 75 m2
Gerponville : maison T4 (75 m²) à construire.
EMPLACEMENT PRIVILÉGIÉ - MAISON 4 PIÈCES NEUVE
À 10 km de la Manche, Extraco construction rénovation Yvetot vous propose cette maison de 4 pièces de plain-pied de 75 m², bénéficiant d'un emplacement privilégié dans Gerponville (76540). Son intérieur dispose de trois chambres, d'une cuisine et d'une salle de bains.
Le terrain de la propriété s'étend sur 792 m².
Cette maison est neuve.
La maison se situe dans un secteur prisé. Une école élémentaire y est implantée. On trouve un accès à l'autoroute A29 à 15 km. Il y a un tennis et une boulangerie à quelques minutes à peine.
Elle est à vendre pour la somme de 202 300 €.
N'hésitez pas à prendre contact avec notre agence (Sébastien LENFANT : 06-66-42-53-33) pour tout renseignement sur le bien, sur les démarches à suivre ou sur les modalités de vente.
Mentions légales
Terrain proposé par un partenaire foncier selon disponibilités et autorisation de publicité au prix de 55 000 €. Hors droit d'enregistrement et frais de notaire. Maison proposée, avec un contrat de construction de maison individuelle, dans le cadre de la loi du 19/12/1990, au prix de 147 300 € (Hors branchements et raccordements, papiers peints, peintures, revêtement de sol dans les chambres, qui sont chiffrés dans les travaux qui restent à charge du client. Tarif modifiable sans préavis). Étiquette énergie : A. Différents modèles disponibles pour ce terrain. Assurances et garanties du constructeur comprises (RC professionnelle, décennale, dommage ouvrage).Agence Maisons Extraco de Yvetot (76190)
- Téléphone :
- 02 35 56 53 46
- Adressse :
- Avenue du Général Leclerc
76190 Yvetot, France
