Maison neuve à
Sacquenville
(27930) Référence :
OS2411664_1
Prix du projet : Maison avec Terrain
prix 195 200 €
- 4 pièces
- 3 chambres
- Surface maison 80 m2
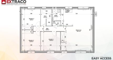
Maison de 4 pièces (80 m²) en vente à Sacquenville
IDÉALEMENT SITUÉE - MAISON 4 PIÈCES NEUVE
En vente : située à quelques kilomètres d'Évreux, nous sommes ravis de vous proposer, idéalement située dans Sacquenville (27930), cette maison de 4 pièces de plain-pied de 80 m². Elle offre trois chambres, une cuisine et une salle de bains.
Le terrain de cette maison s'étend sur 1 106 m².
La maison est neuve.
Cette maison est située dans un quartier recherché. Une école primaire y est implantée. Côté transports en commun, on trouve la gare Évreux Normandie à moins de 10 minutes en voiture. Les nationales N13 et N154 sont accessibles à moins de 8 km. Il y a deux épiceries dans les environs.
Elle est à vendre pour la somme de 195 200 €.
Contactez Oumayma SONMEZ (tél : 06-68-92-00-86) pour plus de renseignements sur la propriété. Les Maisons Extraco Gravigny est là pour vous accompagner dans tous vos projets immobiliers.
Mentions légales
Terrain proposé par un partenaire foncier selon disponibilités et autorisation de publicité au prix de 66 000 €. Hors droit d'enregistrement et frais de notaire. Terrain + Maison proposés au prix de 195 200 € (Hors branchements et raccordements, papiers peints, peintures, revêtement de sol dans les chambres. Tarif modifiable sans préavis). Etiquette énergie : A. Différents modèles disponibles pour ce terrain. Assurances et garanties du constructeur (RC professionnelle, décennale, dommage ouvrage, garantie de remboursement de l'acompte, livraison à prix et délai convenu) : https://www.lesmaisonsextraco.fr/informations-legales/.Agence Maisons Extraco de Gravigny (27930)
- Téléphone :
- 02 32 31 20 44
- Adressse :
- 165 Avenue Aristide Briand
27930 Gravigny, France
