Maison neuve à
Saint-André-d'Hébertot
(14130) Référence :
AC2349015S48_4
Prix du projet : Maison avec Terrain
prix 216 800 €
- 5 pièces
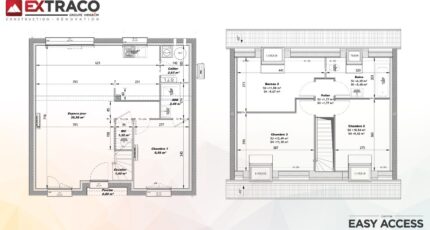
- 4 chambres
- Surface maison 85 m2
Saint-André-d'Hébertot : maison T5 (85 m²) en vente
IDÉALEMENT SITUÉE - MAISON 5 PIÈCES NEUVE
À vendre : nous vous présentons cette maison de 5 pièces de 85 m² idéalement située dans Saint-André-d'Hébertot (14130). Son intérieur comporte quatre chambres, une cuisine et deux salles de bains.
Le terrain de la maison s'étend sur 700 m².
Cette maison compte 2 niveaux. Elle est neuve.
Cette maison se situe dans un quartier attractif. On y trouve une école primaire. Niveau transports en commun, on trouve la gare Pont-l'Évêque à moins de 10 minutes en voiture. Les autoroutes A13, A132 et A29 sont accessibles à moins de 8 km. Il y a deux commerces dans les environs.
Elle est à vendre pour la somme de 216 800 €.
Contactez notre agence (CUVILLIERS Angélique : 07-63-32-12-06) pour plus de renseignements sur la propriété, sur les modalités de vente et sur les démarches à suivre.
EXTRACO Construction Rénovation Pont-l'Évêque vous accompagne à toutes les étapes de l'achat et dans tous vos projets immobiliers.
Mentions légales
Terrain proposé par un partenaire foncier selon disponibilités et autorisation de publicité au prix de 72 000 €. Hors droit d'enregistrement et frais de notaire. Maison proposée, avec un contrat de construction de maison individuelle, dans le cadre de la loi du 19/12/1990, au prix de 144 800 € (Hors branchements et raccordements, papiers peints, peintures, revêtement de sol dans les chambres, qui sont chiffrés dans les travaux qui restent à charge du client. Tarif modifiable sans préavis). Étiquette énergie : A. Différents modèles disponibles pour ce terrain. Assurances et garanties du constructeur comprises (RC professionnelle, décennale, dommage ouvrage).Agence Maisons Extraco de Pont-l'Évêque (14130)
- Téléphone :
- 02 31 64 00 00
- Adressse :
- 20 rue Hamelin
14130 Pont-l'Évêque, France
