Maison neuve à
Saint-André-d'Hébertot
(14130) Référence :
MP2365695_2
Prix du projet : Maison avec Terrain
prix 258 000 €
- 5 pièces
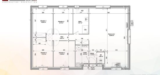
- 4 chambres
- Surface maison 114 m2
Maison de 5 pièces (114 m²) en vente à Saint-André-d'Hébertot
IDÉALEMENT SITUÉE - MAISON 5 PIÈCES NEUVE
À 13 km de la Manche et à quelques kilomètres du Havre, Les Maisons Extraco Pont-l'Évêque vous présente à vendre, idéalement située dans Saint-André-d'Hébertot (14130), cette maison de 5 pièces de plain-pied de 114 m².
Conçue de plain-pied, elle propose quatre chambres, une cuisine et une salle de bains. La maison est neuve.
Le terrain du bien est de 846 m².
La maison se trouve dans un secteur convoité. Une école primaire y est implantée. Côté transports en commun, il y a la gare Pont-l'Évêque à moins de 10 minutes en voiture. Les autoroutes A13, A132 et A29 sont accessibles à moins de 8 km. On trouve deux commerces à quelques minutes.
Elle est proposée à l'achat pour 258 000 €.
Contactez notre agence (Marion PAIN : 06-67-04-73-85) pour obtenir de plus amples renseignements sur la maison ou sur les modalités de vente. Extraco construction rénovation Pont-l'Évêque est là pour vous accompagner dans toutes vos démarches.
Mentions légales
Terrain proposé par un partenaire foncier selon disponibilités et autorisation de publicité au prix de 84 000 €. Hors droit d'enregistrement et frais de notaire. Terrain + Maison proposés au prix de 174 000 € (Hors branchements et raccordements, papiers peints, peintures, revêtement de sol dans les chambres. Tarif modifiable sans préavis). Etiquette énergie : A. Différents modèles disponibles pour ce terrain. Assurances et garanties du constructeur (RC professionnelle, décennale, dommage ouvrage, garantie de remboursement de l'acompte, livraison à prix et délai convenu) : https://www.lesmaisonsextraco.fr/informations-legales/.Agence Maisons Extraco de Pont-l'Évêque (14130)
- Téléphone :
- 02 31 64 00 00
- Adressse :
- 20 rue Hamelin
14130 Pont-l'Évêque, France
