Maison neuve à
Saint-Aubin-sur-Gaillon
(27600) Référence :
CG2436897_1
Prix du projet : Maison avec Terrain
prix 315 200 €
- 5 pièces
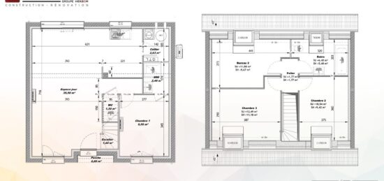
- 4 chambres
- Surface maison 113 m2
Saint-Aubin-sur-Gaillon : maison de 5 pièces en bois (113 m²) en vente
IDÉALEMENT SITUÉE - MAISON 5 PIÈCES NEUVE
À vendre à quelques kilomètres d'Évreux, découvrez cette maison de 5 pièces de plain-pied de 113 m², idéalement située dans Saint-Aubin-sur-Gaillon (27600). Conçue de plain-pied, elle dispose de quatre chambres, d'une cuisine et de deux salles de bains.
Le terrain de cette maison est de 2 200 m².
La maison est neuve.
Cette maison est située dans un quartier convoité. L'École Élémentaire Pierre Pirou et l'École Maternelle Pierre Pirou se trouvent à moins de 10 minutes à pied, tout comme une crèche. Niveau transports, il y a la gare Gaillon-Aubevoye à moins de 10 minutes en voiture. On trouve un tennis dans les environs.
Elle est à vendre pour la somme de 315 200 €.
Prenez contact avec Carole GOITA pour plus de renseignements sur la maison. Extraco Construction Rénovation et Ossature bois Les Andelys vous accompagne dans tous vos projets immobiliers et à toutes les étapes de votre projet.
Mentions légales
Terrain proposé par un partenaire foncier selon disponibilités et autorisation de publicité au prix de 88 700 €. Hors droit d'enregistrement et frais de notaire. Terrain + Maison proposés au prix de 315 200 € (Hors branchements et raccordements, papiers peints, peintures, revêtement de sol dans les chambres. Tarif modifiable sans préavis). Etiquette énergie : A. Différents modèles disponibles pour ce terrain. Assurances et garanties du constructeur (RC professionnelle, décennale, dommage ouvrage, garantie de remboursement de l'acompte, livraison à prix et délai convenu) : https://www.lesmaisonsextraco.fr/informations-legales/.Agence Maisons Extraco de Les Andelys (27700)
- Téléphone :
- 02 32 51 77 46
- Adressse :
- 51 Avenue de la République
27700 Les Andelys, France
