Maison neuve à
Saint-Étienne-sous-Bailleul
(27920) Référence :
CG2352870_1
Prix du projet : Maison avec Terrain
prix 279 900 €
- 5 pièces
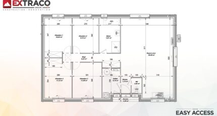
- 4 chambres
- Surface maison 105 m2
VENTE : maison de 5 pièces (105 m²) à Saint-Étienne-sous-Bailleul
IDÉALEMENT SITUÉE - MAISON 5 PIÈCES NEUVE
À vendre : proche de la gare de Vernon-Giverny (Paris à 1 h avec le Transilien J), Extraco Construction Rénovation Les Andelys vous présente cette maison de 5 pièces de plain-pied de 105 m² idéalement située dans Saint-Étienne-sous-Bailleul (27920).
Conçue de plain-pied, elle se divise en quatre chambres, une cuisine et une salle de bains. La maison est neuve.
Le terrain du bien s'étend sur 2 570 m².
La maison se situe dans un secteur convoité. On y trouve une école maternelle. Niveau transports en commun, il y a deux gares (Vernon-Giverny et Gaillon-Aubevoye) à moins de 10 minutes en voiture. L'autoroute A13 est accessible à 7 km et Évreux se situe à 22 km.
Elle est à vendre pour la somme de 279 900 €.
N'hésitez pas à prendre contact avec Carole GOITA (tél : 06-50-10-84-99) pour toute information sur le bien. Extraco Construction Rénovation Les Andelys est là pour vous accompagner dans tous vos projets immobiliers.
Mentions légales
Terrain proposé par un partenaire foncier selon disponibilités et autorisation de publicité au prix de 99 000 €. Hors droit d'enregistrement et frais de notaire. Maison proposée, avec un contrat de construction de maison individuelle, dans le cadre de la loi du 19/12/1990, au prix de 180 900 € (Hors branchements et raccordements, papiers peints, peintures, revêtement de sol dans les chambres, qui sont chiffrés dans les travaux qui restent à charge du client. Tarif modifiable sans préavis). Étiquette énergie : A. Différents modèles disponibles pour ce terrain. Assurances et garanties du constructeur comprises (RC professionnelle, décennale, dommage ouvrage).Agence Maisons Extraco de Les Andelys (27700)
- Téléphone :
- 02 32 51 77 46
- Adressse :
- 51 Avenue de la République
27700 Les Andelys, France
