Maison neuve à
Saint-Hymer
(14130) Référence :
AC2350605S48_1
Prix du projet : Maison avec Terrain
prix 284 700 €
- 4 pièces
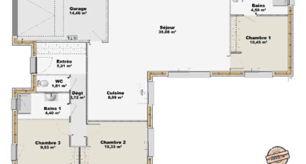
- 3 chambres
- Surface maison 94 m2
OSSATURE BOIS
VENTE : maison T4 (94 m²) à Saint-Hymer
IDÉALEMENT SITUÉE - MAISON 4 PIÈCES NEUVE
Notre agence EXTRACO Construction Rénovation Pont-l'Évêque est heureuse de vous présenter en vente, idéalement située dans Saint-Hymer (14130), cette maison de 4 pièces de plain-pied de 94 m² et de 636 m² de terrain. Conçue de plain-pied, elle compte trois chambres, une cuisine et deux salles de bains.
La maison est neuve.
Cette maison est située dans un secteur attractif. Il y a plusieurs écoles (maternelle, élémentaire, primaire et collège) à moins de 10 minutes en voiture. Niveau transports en commun, on trouve la gare Pont-l'Évêque à proximité. Les autoroutes A13 et A132 sont accessibles à moins de 5 km. Il y a trois bibliothèques, quatre tennis, des commerces, des boulangeries, quatre supermarchés, deux supérettes et une poissonnerie à quelques minutes à peine. Enfin, le marché Place Foch anime les environs tous les lundis matin.
Elle est à vendre pour la somme de 284 700 €.
Contactez Angélique CUVILLIERS (07-63-32-12-06) pour obtenir de plus amples renseignements sur la maison ou sur les modalités de vente.
EXTRACO Construction Rénovation Pont-l'Évêque est là pour vous accompagner dans toutes vos démarches.
Mentions légales
Terrain proposé par un partenaire foncier selon disponibilités et autorisation de publicité au prix de 75 000 €. Hors droit d'enregistrement et frais de notaire. Maison proposée, avec un contrat de construction de maison individuelle, dans le cadre de la loi du 19/12/1990, au prix de 209 700 € (Hors branchements et raccordements, papiers peints, peintures, revêtement de sol dans les chambres, qui sont chiffrés dans les travaux qui restent à charge du client. Tarif modifiable sans préavis). Étiquette énergie : A. Différents modèles disponibles pour ce terrain. Assurances et garanties du constructeur comprises (RC professionnelle, décennale, dommage ouvrage).Agence Maisons Extraco de Pont-l'Évêque (14130)
- Téléphone :
- 02 31 64 00 00
- Adressse :
- 20 rue Hamelin
14130 Pont-l'Évêque, France
