Maison neuve à
Saint-Hymer
(14130) Référence :
MP2348911_2
Prix du projet : Maison avec Terrain
prix 265 000 €
- 5 pièces
- 4 chambres
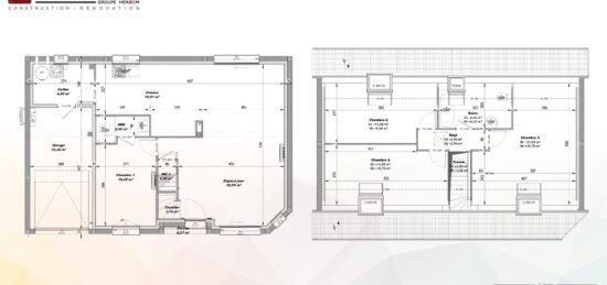
- Surface maison 105 m2
VENTE : maison F5 (105 m²) à Saint-Hymer
IDÉALEMENT SITUÉE - MAISON 5 PIÈCES NEUVE
À vendre à 16 km de la Manche et à deux pas du Havre, nous vous présentons cette maison de 5 pièces de 105 m² et de 566 m² de terrain idéalement située dans Saint-Hymer (14130).
Il s'agit d'une maison de 2 niveaux. Son intérieur propose quatre chambres, une cuisine et deux salles de bains. La maison est neuve.
Cette maison se situe dans un secteur recherché. Plusieurs écoles (maternelle, élémentaire, primaire et collège) se trouvent à moins de 10 minutes en voiture. Niveau transports en commun, il y a la gare Pont-l'Évêque dans les alentours. Les autoroutes A13 et A132 sont accessibles à moins de 5 km. On trouve trois bibliothèques, quatre tennis, des commerces, des boulangeries, quatre supermarchés, une poissonnerie et deux supérettes à proximité du bien. Ne manquez pas le marché Place Foch chaque lundi matin.
Elle est proposée à l'achat pour 265 000 €.
Prenez contact avec Marion PAIN (tél : 06-67-04-73-85) pour obtenir de plus amples renseignements sur la maison ou sur les démarches à suivre.
Mentions légales
Terrain proposé par un partenaire foncier selon disponibilités et autorisation de publicité au prix de 79 000 €. Hors droit d'enregistrement et frais de notaire. Maison proposée, avec un contrat de construction de maison individuelle, dans le cadre de la loi du 19/12/1990, au prix de 186 000 € (Hors branchements et raccordements, papiers peints, peintures, revêtement de sol dans les chambres, qui sont chiffrés dans les travaux qui restent à charge du client. Tarif modifiable sans préavis). Étiquette énergie : A. Différents modèles disponibles pour ce terrain. Assurances et garanties du constructeur comprises (RC professionnelle, décennale, dommage ouvrage).Agence Maisons Extraco de Pont-l'Évêque (14130)
- Téléphone :
- 02 31 64 00 00
- Adressse :
- 20 rue Hamelin
14130 Pont-l'Évêque, France
