Maison neuve à
Saint-Hymer
(14130) Référence :
MP2348933_3
Prix du projet : Maison avec Terrain
prix 289 000 €
- 5 pièces
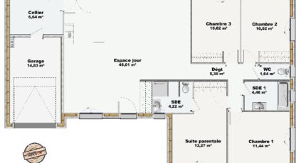
- 4 chambres
- Surface maison 113 m2
Saint-Hymer : maison de 5 pièces (113 m²) à vendre
PROCHE DU HAVRE - MAISON 5 PIÈCES NEUVE
À vendre : à 16 km de la Manche et à 28 km du Havre, notre agence Extraco construction rénovation Pont-l'Évêque est ravie de vous proposer à Saint-Hymer (14130), cette maison de 5 pièces de plain-pied de 113 m² et de 755 m² de terrain.
Elle offre quatre chambres, une cuisine et deux salles de bains. Cette maison est neuve.
On trouve plusieurs écoles (maternelle, élémentaire, primaire et collège) à moins de 10 minutes en voiture. Niveau transports en commun, il y a la gare Pont-l'Évêque dans les environs. Les autoroutes A13 et A132 sont accessibles à moins de 5 km. On trouve trois bibliothèques, quatre tennis, des commerces, des boulangeries, quatre supermarchés, des épiceries et des boucheries-charcuteries à quelques minutes. Le marché Place Foch a lieu tous les lundis matin.
Elle est proposée à l'achat pour 289 000 €.
N'hésitez pas à prendre contact avec Marion PAIN (tél : 06-67-04-73-85) pour obtenir de plus amples informations sur la maison ou sur les modalités de vente. Extraco construction rénovation Pont-l'Évêque est là pour vous accompagner dans tous vos projets immobiliers.
Mentions légales
Terrain proposé par un partenaire foncier selon disponibilités et autorisation de publicité au prix de 82 000 €. Hors droit d'enregistrement et frais de notaire. Maison proposée, avec un contrat de construction de maison individuelle, dans le cadre de la loi du 19/12/1990, au prix de 207 000 € (Hors branchements et raccordements, papiers peints, peintures, revêtement de sol dans les chambres, qui sont chiffrés dans les travaux qui restent à charge du client. Tarif modifiable sans préavis). Étiquette énergie : A. Différents modèles disponibles pour ce terrain. Assurances et garanties du constructeur comprises (RC professionnelle, décennale, dommage ouvrage).Agence Maisons Extraco de Pont-l'Évêque (14130)
- Téléphone :
- 02 31 64 00 00
- Adressse :
- 20 rue Hamelin
14130 Pont-l'Évêque, France
