Maison neuve à
Saint-Pierre-sur-Dives
(14170) Référence :
AC2349016S48_1
Prix du projet : Maison avec Terrain
prix 194 500 €
- 5 pièces
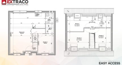
- 4 chambres
- Surface maison 85 m2
Saint-Pierre-sur-Dives : maison T5 (85 m²) en vente
EMPLACEMENT PRIVILÉGIÉ - MAISON 5 PIÈCES NEUVE
En vente à 31 km de Caen, votre agence EXTRACO Construction Rénovation Pont-l'Évêque est ravie de vous présenter cette maison de 5 pièces de 85 m² bénéficiant d'un emplacement privilégié dans Saint-Pierre-sur-Dives (14170).
Cette maison possède 2 niveaux. Elle comporte quatre chambres, une cuisine et deux salles de bains. Cette maison est neuve.
Le terrain de la propriété s'étend sur 600 m².
La maison se situe dans un secteur attractif. L'École Élémentaire Privée Sainte Thérèse et le Collège Privé Sainte Thérèse sont implantés à moins de 10 minutes à pied. Côté transports, il y a la gare Saint-Pierre-sur-Dives dans les alentours. Il y a un accès à la nationale N158 à 16 km. On trouve un bassin de natation, une bibliothèque, des commerces, des boulangeries, un supermarché, un bureau de poste et une poissonnerie à proximité du bien. Enfin, le marché Place du marché a lieu tous les lundis matin.
Elle est proposée à l'achat pour 194 500 €.
N'hésitez pas à prendre contact avec Angélique CUVILLIERS (tél : 07-63-32-12-06) pour tout renseignement sur la maison, sur les démarches à suivre ou sur les modalités de vente.
Mentions légales
Terrain proposé par un partenaire foncier selon disponibilités et autorisation de publicité au prix de 48 000 €. Hors droit d'enregistrement et frais de notaire. Maison proposée, avec un contrat de construction de maison individuelle, dans le cadre de la loi du 19/12/1990, au prix de 146 500 € (Hors branchements et raccordements, papiers peints, peintures, revêtement de sol dans les chambres, qui sont chiffrés dans les travaux qui restent à charge du client. Tarif modifiable sans préavis). Étiquette énergie : A. Différents modèles disponibles pour ce terrain. Assurances et garanties du constructeur comprises (RC professionnelle, décennale, dommage ouvrage).Agence Maisons Extraco de Pont-l'Évêque (14130)
- Téléphone :
- 02 31 64 00 00
- Adressse :
- 20 rue Hamelin
14130 Pont-l'Évêque, France
