Maison neuve à
Saint-Pierre-sur-Dives
(14170) Référence :
AC2349016S48_2
Prix du projet : Maison avec Terrain
prix 249 900 €
- 4 pièces
- 3 chambres
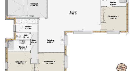
- Surface maison 94 m2
OSSATURE BOIS
VENTE : maison T4 (94 m²) à Saint-Pierre-sur-Dives
EMPLACEMENT PRIVILÉGIÉ - MAISON 4 PIÈCES NEUVE
En vente : située à quelques kilomètres de Caen, nous vous présentons cette maison de 4 pièces de plain-pied de 94 m², bénéficiant d'un emplacement d'exception dans Saint-Pierre-sur-Dives (14170). Conçue de plain-pied, elle offre trois chambres, une cuisine et deux salles de bains.
Le terrain de cette maison est de 600 m².
La maison est neuve.
Cette maison se trouve dans un secteur convoité. Il y a l'École Élémentaire Privée Sainte Thérèse et le Collège Privé Sainte Thérèse à moins de 10 minutes à pied. Niveau transports en commun, on trouve la gare Saint-Pierre-sur-Dives juste à côté. La nationale N158 est accessible à 16 km. Il y a un bassin de natation, une bibliothèque, des commerces, des boulangeries, un supermarché, une supérette et un bureau de poste à proximité. Enfin, le marché Place du marché anime les environs chaque lundi matin.
Elle est à vendre pour la somme de 249 900 €.
Contactez notre agence (CUVILLIERS Angélique : 07-63-32-12-06) pour plus d'informations sur la propriété.
Concrétisez vos projets immobiliers avec EXTRACO Construction Rénovation Pont-l'Évêque.
Mentions légales
Terrain proposé par un partenaire foncier selon disponibilités et autorisation de publicité au prix de 48 000 €. Hors droit d'enregistrement et frais de notaire. Maison proposée, avec un contrat de construction de maison individuelle, dans le cadre de la loi du 19/12/1990, au prix de 201 900 € (Hors branchements et raccordements, papiers peints, peintures, revêtement de sol dans les chambres, qui sont chiffrés dans les travaux qui restent à charge du client. Tarif modifiable sans préavis). Étiquette énergie : A. Différents modèles disponibles pour ce terrain. Assurances et garanties du constructeur comprises (RC professionnelle, décennale, dommage ouvrage).Agence Maisons Extraco de Pont-l'Évêque (14130)
- Téléphone :
- 02 31 64 00 00
- Adressse :
- 20 rue Hamelin
14130 Pont-l'Évêque, France
