Maison neuve à
Saint-Pierre-sur-Dives
(14170) Référence :
AC2349016S48_3
Prix du projet : Maison avec Terrain
prix 199 900 €
- 5 pièces
- 4 chambres
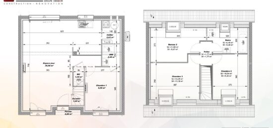
- Surface maison 92 m2
Maison T5 (92 m²) en vente à Saint-Pierre-sur-Dives
EMPLACEMENT PRIVILÉGIÉ - MAISON 5 PIÈCES NEUVE
À vendre : située à quelques kilomètres de Caen, EXTRACO Construction Rénovation Pont-l'Évêque vous présente cette maison de 5 pièces de plain-pied de 92 m² et de 600 m² de terrain bénéficiant d'un emplacement d'exception dans Saint-Pierre-sur-Dives (14170). Conçue de plain-pied, elle compte quatre chambres, une cuisine et une salle de bains.
La maison est neuve.
La maison se situe dans un quartier recherché. On trouve l'École Élémentaire Privée Sainte Thérèse et le Collège Privé Sainte Thérèse à moins de 10 minutes à pied. Côté transports, il y a la gare Saint-Pierre-sur-Dives juste à côté. On trouve un accès à la nationale N158 à 16 km. On trouve un bassin de natation, une bibliothèque, des commerces, des boulangeries, un supermarché, une supérette et une poissonnerie dans les environs. Le marché Place du marché a lieu tous les lundis matin.
Son prix de vente est de 199 900 €.
Contactez Angélique CUVILLIERS (tél : 07-63-32-12-06) pour tout renseignement sur le bien ou sur les modalités de vente.
Mentions légales
Terrain proposé par un partenaire foncier selon disponibilités et autorisation de publicité au prix de 48 000 €. Hors droit d'enregistrement et frais de notaire. Maison proposée, avec un contrat de construction de maison individuelle, dans le cadre de la loi du 19/12/1990, au prix de 151 900 € (Hors branchements et raccordements, papiers peints, peintures, revêtement de sol dans les chambres, qui sont chiffrés dans les travaux qui restent à charge du client. Tarif modifiable sans préavis). Étiquette énergie : A. Différents modèles disponibles pour ce terrain. Assurances et garanties du constructeur comprises (RC professionnelle, décennale, dommage ouvrage).Agence Maisons Extraco de Pont-l'Évêque (14130)
- Téléphone :
- 02 31 64 00 00
- Adressse :
- 20 rue Hamelin
14130 Pont-l'Évêque, France
