Maison neuve à
Saint-Pierre-sur-Dives
(14170) Référence :
AC2349016S48_4
Prix du projet : Maison avec Terrain
prix 203 400 €
- 4 pièces
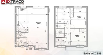
- 3 chambres
- Surface maison 88 m2
VENTE : maison de 4 pièces (88 m²) à Saint-Pierre-sur-Dives
EMPLACEMENT PRIVILÉGIÉ - MAISON 4 PIÈCES NEUVE
À vendre : à deux pas de Caen, bénéficiant d'un emplacement d'exception dans Saint-Pierre-sur-Dives (14170), nous vous proposons cette maison de 4 pièces de 88 m². Elle propose trois chambres, une cuisine et une salle de bains.
Le terrain du bien s'étend sur 600 m².
Il s'agit d'une maison de 2 niveaux. Elle est neuve.
Cette maison se situe dans un quartier attractif. L'École Élémentaire Privée Sainte Thérèse et le Collège Privé Sainte Thérèse sont implantés à moins de 10 minutes à pied. Niveau transports, il y a la gare Saint-Pierre-sur-Dives à quelques pas du bien. Il y a un accès à la nationale N158 à 16 km. On trouve un bassin de natation, une bibliothèque, des commerces, des boulangeries, un supermarché, des boucheries-charcuteries et une poissonnerie à quelques minutes de la maison. Enfin, le marché Place du marché anime les environs chaque lundi matin.
Son prix de vente est de 203 400 €.
N'hésitez pas à prendre contact avec notre agence (Angélique CUVILLIERS : 07-63-32-12-06) pour tout renseignement sur la maison ou sur les modalités de vente.
EXTRACO Construction Rénovation Pont-l'Évêque est là pour vous accompagner à toutes les étapes de votre projet.
Mentions légales
Terrain proposé par un partenaire foncier selon disponibilités et autorisation de publicité au prix de 48 000 €. Hors droit d'enregistrement et frais de notaire. Maison proposée, avec un contrat de construction de maison individuelle, dans le cadre de la loi du 19/12/1990, au prix de 155 400 € (Hors branchements et raccordements, papiers peints, peintures, revêtement de sol dans les chambres, qui sont chiffrés dans les travaux qui restent à charge du client. Tarif modifiable sans préavis). Étiquette énergie : A. Différents modèles disponibles pour ce terrain. Assurances et garanties du constructeur comprises (RC professionnelle, décennale, dommage ouvrage).Agence Maisons Extraco de Pont-l'Évêque (14130)
- Téléphone :
- 02 31 64 00 00
- Adressse :
- 20 rue Hamelin
14130 Pont-l'Évêque, France
