Maison neuve à
Saint-Sébastien-de-Morsent
(27180) Référence :
OS2418162_2
Prix du projet : Maison avec Terrain
prix 204 000 €
- 4 pièces
- 2 chambres
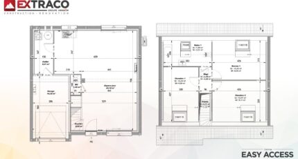
- Surface maison 81 m2
Maison F4 (81 m²) en vente à Saint-Sébastien-de-Morsent
IDÉALEMENT SITUÉE - MAISON 4 PIÈCES NEUVE
À quelques kilomètres d'Évreux, découvrez cette maison de 4 pièces de 81 m² et de 1 674 m² de terrain en vente idéalement située dans Saint-Sébastien-de-Morsent (27180).
C'est une maison de 2 niveaux. Son intérieur dispose de deux chambres, d'une cuisine et d'une salle de bains. Cette maison est neuve.
La maison se trouve dans un quartier convoité. L'École Primaire Marie Laurencin, l'École Maternelle le Forestier et l'École Élémentaire le Forestier sont implantées à moins de 10 minutes à pied. Niveau transports en commun, on trouve les gares La Bonneville-sur-Iton et Évreux Normandie à moins de 10 minutes en voiture. Les nationales N13 et N154 sont accessibles à moins de 8 km. Il y a deux tennis, deux boulangeries, trois commerces, un supermarché, un bureau de poste et une boucherie-charcuterie à quelques minutes du logement.
Elle est à vendre pour la somme de 204 000 €.
Contactez notre agence (Oumayma SONMEZ : 06-68-92-00-86) pour tout renseignement sur la maison ou sur les démarches à suivre.
Mentions légales
Terrain proposé par un partenaire foncier selon disponibilités et autorisation de publicité au prix de 59 000 €. Hors droit d'enregistrement et frais de notaire. Terrain + Maison proposés au prix de 145 000 € (Hors branchements et raccordements, papiers peints, peintures, revêtement de sol dans les chambres. Tarif modifiable sans préavis). Etiquette énergie : A. Différents modèles disponibles pour ce terrain. Assurances et garanties du constructeur (RC professionnelle, décennale, dommage ouvrage, garantie de remboursement de l'acompte, livraison à prix et délai convenu) : https://www.lesmaisonsextraco.fr/informations-legales/.Agence Maisons Extraco de Gravigny (27930)
- Téléphone :
- 02 32 31 20 44
- Adressse :
- 165 Avenue Aristide Briand
27930 Gravigny, France
