Maison neuve à
Smermesnil
(76660) Référence :
SE2439228_2
Prix du projet : Maison avec Terrain
prix 270 830 €
- 4 pièces
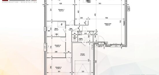
- 5 chambres
- Surface maison 135 m2
Maison T4 (135 m²) en vente à Smermesnil
IDÉALEMENT SITUÉE - MAISON 4 PIÈCES NEUVE
À 27 km de la Manche et à quelques kilomètres de Dieppe, notre agence Les Maisons Extraco Dieppe est heureuse de vous présenter en vente, idéalement située dans Smermesnil (76660), cette maison de 4 pièces de 135 m².
Cette maison comporte 2 niveaux. Elle inclut cinq chambres, une cuisine et deux salles de bains. Cette maison est neuve.
Le terrain du bien est de 2 591 m².
La propriété se trouve dans un secteur prisé. Une école primaire y est implantée.
Son prix de vente est de 270 830 €.
Contactez notre agence Slimane ELHLOU pour tout renseignement sur la maison ou sur les démarches à suivre.
Mentions légales
Terrain proposé par un partenaire foncier selon disponibilités et autorisation de publicité au prix de 49 450 €. Hors droit d'enregistrement et frais de notaire. Terrain + Maison proposés au prix de 270 830 € (Hors branchements et raccordements, papiers peints, peintures, revêtement de sol dans les chambres. Tarif modifiable sans préavis). Etiquette énergie : A. Différents modèles disponibles pour ce terrain. Assurances et garanties du constructeur (RC professionnelle, décennale, dommage ouvrage, garantie de remboursement de l'acompte, livraison à prix et délai convenu) : https://www.lesmaisonsextraco.fr/informations-legales/.Agence Maisons Extraco de Dieppe (76200)
- Téléphone :
- 02 35 06 07 50
- Adressse :
- 78 rue de la Barre
76200 Dieppe, France
