Maison neuve à
Talmontiers
(60590) Référence :
CG2352934_1
Prix du projet : Maison avec Terrain
prix 214 000 €
- 4 pièces
- 2 chambres
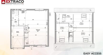
- Surface maison 81 m2
VENTE : maison de 4 pièces (81 m²) à Talmontiers
EMPLACEMENT PRIVILÉGIÉ - MAISON 4 PIÈCES NEUVE
À 25 km de Beauvais, ayez le coup de coeur pour cette maison de 4 pièces de 81 m² et de 560 m² de terrain en vente bénéficiant d'un emplacement d'exception dans Talmontiers (60590). Son intérieur comporte deux chambres, une cuisine et une salle de bains.
Cette maison possède 2 niveaux. Elle est neuve.
Cette maison est située dans un secteur recherché. Une école primaire y est implantée. Niveau transports en commun, il y a la gare Sérifontaine à moins de 10 minutes en voiture. On trouve des bibliothèques, des tennis, des boulangeries, des commerces, un supermarché, une boucherie-charcuterie et un bureau de poste à proximité du bien.
Elle est à vendre pour la somme de 214 000 €.
Contactez Carole GOITA (tél : 06-50-10-84-99) pour obtenir de plus amples renseignements sur la maison ou sur les démarches à suivre. Extraco Construction Rénovation Les Andelys vous accompagne à toutes les étapes de l'achat et dans tous vos projets immobiliers.
Mentions légales
Terrain proposé par un partenaire foncier selon disponibilités et autorisation de publicité au prix de 50 000 €. Hors droit d'enregistrement et frais de notaire. Maison proposée, avec un contrat de construction de maison individuelle, dans le cadre de la loi du 19/12/1990, au prix de 164 000 € (Hors branchements et raccordements, papiers peints, peintures, revêtement de sol dans les chambres, qui sont chiffrés dans les travaux qui restent à charge du client. Tarif modifiable sans préavis). Étiquette énergie : A. Différents modèles disponibles pour ce terrain. Assurances et garanties du constructeur comprises (RC professionnelle, décennale, dommage ouvrage).Agence Maisons Extraco de Les Andelys (27700)
- Téléphone :
- 02 32 51 77 46
- Adressse :
- 51 Avenue de la République
27700 Les Andelys, France
