Maison neuve à
Talmontiers
(60590) Référence :
CG2352934_2
Prix du projet : Maison avec Terrain
prix 189 000 €
- 4 pièces
- 2 chambres
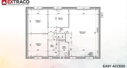
- Surface maison 71 m2
Maison de 4 pièces (71 m²) en vente à Talmontiers
EMPLACEMENT PRIVILÉGIÉ - MAISON 4 PIÈCES NEUVE
À vendre à quelques kilomètres de Beauvais, découvrez, bénéficiant d'un emplacement d'exception dans Talmontiers (60590), cette maison de 4 pièces de plain-pied de 71 m².
Elle compte deux chambres, une cuisine et une salle de bains. La maison est neuve.
Le terrain de la propriété s'étend sur 560 m².
La propriété se trouve dans un secteur convoité. On y trouve une école primaire. Niveau transports, il y a la gare Sérifontaine à moins de 10 minutes en voiture. On trouve des bibliothèques, des tennis, des boulangeries, des commerces, un supermarché, une boucherie-charcuterie et des épiceries dans les environs.
Son prix de vente est de 189 000 €.
N'hésitez pas à prendre contact avec Carole GOITA (tél : 06-50-10-84-99) pour plus d'informations sur la maison, sur les démarches à suivre ou sur les modalités de vente. Donnez vie à vos projets immobiliers avec Extraco Construction Rénovation Les Andelys.
Mentions légales
Terrain proposé par un partenaire foncier selon disponibilités et autorisation de publicité au prix de 50 000 €. Hors droit d'enregistrement et frais de notaire. Maison proposée, avec un contrat de construction de maison individuelle, dans le cadre de la loi du 19/12/1990, au prix de 139 000 € (Hors branchements et raccordements, papiers peints, peintures, revêtement de sol dans les chambres, qui sont chiffrés dans les travaux qui restent à charge du client. Tarif modifiable sans préavis). Étiquette énergie : A. Différents modèles disponibles pour ce terrain. Assurances et garanties du constructeur comprises (RC professionnelle, décennale, dommage ouvrage).Agence Maisons Extraco de Les Andelys (27700)
- Téléphone :
- 02 32 51 77 46
- Adressse :
- 51 Avenue de la République
27700 Les Andelys, France
