Maison neuve à
Talmontiers
(60590) Référence :
CG2352934_4
Prix du projet : Maison avec Terrain
prix 214 000 €
- 4 pièces
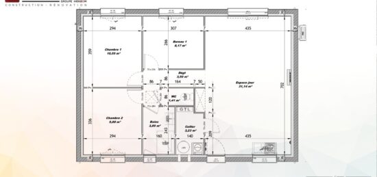
- 3 chambres
- Surface maison 75 m2
VENTE d'une maison F4 en structure bois (75 m²) à Talmontiers
EMPLACEMENT PRIVILÉGIÉ - MAISON 4 PIÈCES NEUVE
À vendre à 25 km de Beauvais, laissez vous charmer par, bénéficiant d'un emplacement privilégié dans Talmontiers (60590), cette maison de 4 pièces de plain-pied de 75 m² et de 560 m² de terrain. Conçue de plain-pied, elle comporte trois chambres, une cuisine et une salle de bains.
La maison est neuve.
La maison se situe dans un secteur prisé. Une école primaire y est implantée. Niveau transports, on trouve la gare Sérifontaine à moins de 10 minutes en voiture. Il y a des bibliothèques, des tennis, des boulangeries, des commerces, un supermarché, une boucherie-charcuterie et un bureau de poste dans les environs.
Son prix de vente est de 214 000 €.
N'hésitez pas à prendre contact avec notre agence (Carole GOITA : 06-50-10-84-99) pour toute information sur la maison.
Mentions légales
Terrain proposé par un partenaire foncier selon disponibilités et autorisation de publicité au prix de 50 000 €. Hors droit d'enregistrement et frais de notaire. Maison proposée, avec un contrat de construction de maison individuelle, dans le cadre de la loi du 19/12/1990, au prix de 164 000 € (Hors branchements et raccordements, papiers peints, peintures, revêtement de sol dans les chambres, qui sont chiffrés dans les travaux qui restent à charge du client. Tarif modifiable sans préavis). Étiquette énergie : A. Différents modèles disponibles pour ce terrain. Assurances et garanties du constructeur comprises (RC professionnelle, décennale, dommage ouvrage).Agence Maisons Extraco de Les Andelys (27700)
- Téléphone :
- 02 32 51 77 46
- Adressse :
- 51 Avenue de la République
27700 Les Andelys, France
