Maison neuve à
Talmontiers
(60590) Référence :
CG2380187_3
Prix du projet : Maison avec Terrain
prix 212 000 €
- 4 pièces
- 3 chambres
- Surface maison 84 m2
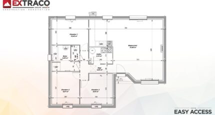
VENTE d'une maison de 4 pièces (84 m²) à Talmontiers
IDÉALEMENT SITUÉE - MAISON 4 PIÈCES NEUVE
En vente : située à deux pas de Beauvais, notre agence Extraco Construction Rénovation Les Andelys est ravie de vous proposer, idéalement située dans Talmontiers (60590), cette maison de 4 pièces de plain-pied de 84 m² et de 560 m² de terrain.
Son intérieur dispose de trois chambres, d'une cuisine et d'une salle de bains. La maison est neuve.
La maison se trouve dans un quartier prisé. On y trouve une école primaire. Côté transports en commun, il y a la gare Sérifontaine à moins de 10 minutes en voiture. On trouve des bibliothèques, des tennis, des boulangeries, des commerces, un supermarché, des épiceries et un bureau de poste à proximité de la maison.
Son prix de vente est de 212 000 €.
Contactez notre constructeur (Carole GOITA : 06-50-10-84-99) pour toute question sur la propriété.
Mentions légales
Terrain proposé par un partenaire foncier selon disponibilités et autorisation de publicité au prix de 50 000 €. Hors droit d'enregistrement et frais de notaire. Terrain + Maison proposés au prix de 162 000 € (Hors branchements et raccordements, papiers peints, peintures, revêtement de sol dans les chambres. Tarif modifiable sans préavis). Etiquette énergie : A. Différents modèles disponibles pour ce terrain. Assurances et garanties du constructeur (RC professionnelle, décennale, dommage ouvrage, garantie de remboursement de l'acompte, livraison à prix et délai convenu) : https://www.lesmaisonsextraco.fr/informations-legales/.Agence Maisons Extraco de Les Andelys (27700)
- Téléphone :
- 02 32 51 77 46
- Adressse :
- 51 Avenue de la République
27700 Les Andelys, France
