Maison neuve à
Toutainville
(27500) Référence :
CG2411685_2
Prix du projet : Maison avec Terrain
prix 240 060 €
- 4 pièces
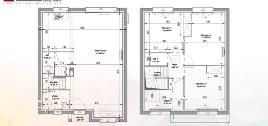
- 3 chambres
- Surface maison 93 m2
Toutainville : maison de 4 pièces (93 m²) en vente
IDÉALEMENT SITUÉE - MAISON 4 PIÈCES NEUVE
En vente : à 11 km de la Manche et à 28 km du Havre, notre agence Les Maisons Extraco Pont-Audemer est heureuse de vous présenter cette maison de 4 pièces de plain-pied de 93 m² idéalement située dans Toutainville (27500).
Conçue de plain-pied, elle est composée de trois chambres, d'une cuisine et d'une salle de bains. Cette maison est neuve.
Le terrain de la propriété s'étend sur 1 488 m².
Cette maison se trouve dans un quartier attractif. Il y a l'École Primaire Gaston Boudet à moins de 10 minutes à pied. L'autoroute A13 est accessible à 7 km. On trouve deux boulangeries dans les environs.
Elle est à vendre pour la somme de 240 060 €.
Contactez notre constructeur (GARCIA Cécilia : 06-28-09-94-28) pour toute information sur la maison. Les Maisons Extraco Pont-Audemer vous accompagne dans tous vos projets immobiliers et dans toutes vos démarches.
Mentions légales
Terrain proposé par un partenaire foncier selon disponibilités et autorisation de publicité au prix de 55 060 €. Hors droit d'enregistrement et frais de notaire. Terrain + Maison proposés au prix de 240 060 € (Hors branchements et raccordements, papiers peints, peintures, revêtement de sol dans les chambres. Tarif modifiable sans préavis). Etiquette énergie : A. Différents modèles disponibles pour ce terrain. Assurances et garanties du constructeur (RC professionnelle, décennale, dommage ouvrage, garantie de remboursement de l'acompte, livraison à prix et délai convenu) : https://www.lesmaisonsextraco.fr/informations-legales/.Agence Maisons Extraco de Pont-Audemer (27500)
- Téléphone :
- 02 32 41 95 72
- Adressse :
- 50 rue de la République
27500 Pont-Audemer, France
