Maison neuve à
Trémauville
(76640) Référence :
JL2345477_1
Prix du projet : Maison avec Terrain
prix 205 000 €
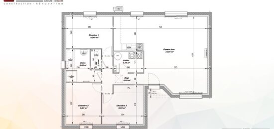
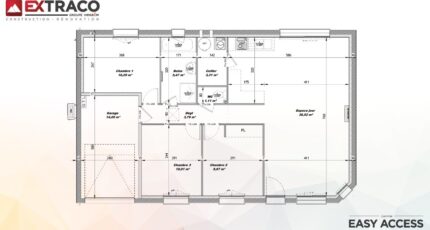
- 4 pièces
- 3 chambres
- Surface maison 82 m2
Maison idéalement située à Trémauville sur un terrain de 643 m².
À proximité, dans le bourg : école, boulangerie, parc pour enfants, bus vert.
Cette maison contemporaine bénéficie d'un agencement agréable : - Salon/séjour avec cuisine ouverte de 45 m², avec une grande baie coulissante de 2,20 m en alu, - cellier, - 3 chambres avec placards, - suite parentale avec dressing et douche à l'italienne, - salle de bains avec baignoire et douche, - garage de 15 m².
Isolation renforcée avec système de chauffage très économique par pompe à chaleur. Maison certifiée RE20. DPE : A / GSE : B.
Venez nous rencontrer et visiter notre showroom : Maisons Extraco - 3 Rue de la Scierie - 76530 LES ESSARTS
Personnalisée sur les secteurs de votre choix. Étude gratuite auprès de votre conseillère : Justine LEROY (O6.37.22.36.47 / j.leroy at extraco.fr).
(Premier échange par SMS possible)
Mentions légales
Terrain proposé par un partenaire foncier selon disponibilités et autorisation de publicité au prix de 55 000 €. Hors droit d'enregistrement et frais de notaire. Terrain + Maison proposés au prix de 150 000 € (Hors branchements et raccordements, papiers peints, peintures, revêtement de sol dans les chambres. Tarif modifiable sans préavis). Etiquette énergie : A. Différents modèles disponibles pour ce terrain. Assurances et garanties du constructeur (RC professionnelle, décennale, dommage ouvrage, garantie de remboursement de l'acompte, livraison à prix et délai convenu) : https://www.lesmaisonsextraco.fr/informations-legales/.Agence Maisons Extraco de Yvetot (76190)
- Téléphone :
- 02 35 56 53 46
- Adressse :
- Avenue du Général Leclerc
76190 Yvetot, France
