Maison neuve à
Trouville-sur-Mer
(14360) Référence :
MP2348303_3
Prix du projet : Maison avec Terrain
prix 474 000 €
- 5 pièces
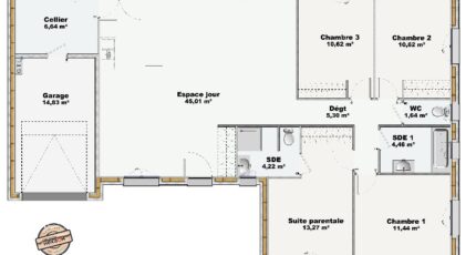
- 4 chambres
- Surface maison 113 m2
VENTE : maison T5 (113 m²) à Trouville-sur-Mer
QUARTIER RECHERCHÉ - MAISON 5 PIÈCES NEUVE
En vente : située à 1 km de la Manche et à deux pas du Havre, dans un quartier attractif de Trouville-sur-Mer (14360), nous sommes heureux de vous proposer cette maison de 5 pièces de plain-pied de 113 m². Conçue de plain-pied, elle comporte quatre chambres, une cuisine et deux salles de bains.
Le terrain de la propriété est de 583 m².
Cette maison est neuve.
Le bien est situé dans un secteur recherché. Il y a l'École Élémentaire Privée Jeanne d'Arc, le Lycée Général Privé Marie-Joseph et le Collège Privé Marie-Joseph à moins de 10 minutes à pied. Côté transports en commun, on trouve les gares Trouville-Deauville, Blonville-sur-Mer-Benerville et Villers-sur-Mer à moins de 10 minutes en voiture. Les autoroutes A29 et A132 sont accessibles à moins de 10 km. Il y a une bibliothèque à proximité de la maison.
Il est à vendre pour la somme de 474 000 €.
Prenez contact avec notre agence (Marion PAIN : 06-67-04-73-85) pour tout renseignement sur la maison ou sur les modalités de vente. Concrétisez vos projets immobiliers avec Extraco construction rénovation Pont-l'Évêque.
Mentions légales
Terrain proposé par un partenaire foncier selon disponibilités et autorisation de publicité au prix de 265 000 €. Hors droit d'enregistrement et frais de notaire. Maison proposée, avec un contrat de construction de maison individuelle, dans le cadre de la loi du 19/12/1990, au prix de 209 000 € (Hors branchements et raccordements, papiers peints, peintures, revêtement de sol dans les chambres, qui sont chiffrés dans les travaux qui restent à charge du client. Tarif modifiable sans préavis). Étiquette énergie : A. Différents modèles disponibles pour ce terrain. Assurances et garanties du constructeur comprises (RC professionnelle, décennale, dommage ouvrage).Agence Maisons Extraco de Pont-l'Évêque (14130)
- Téléphone :
- 02 31 64 00 00
- Adressse :
- 20 rue Hamelin
14130 Pont-l'Évêque, France
