Maison neuve à
Vatteville
(27430) Référence :
CG2373706_1
Prix du projet : Maison avec Terrain
prix 293 600 €
- 4 pièces
- 4 chambres
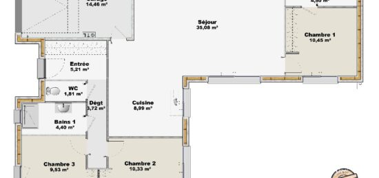
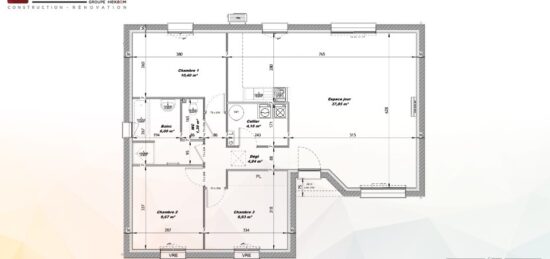
- Surface maison 112 m2
VENTE : maison F4 (112 m²) à Vatteville
IDÉALEMENT SITUÉE - MAISON 4 PIÈCES NEUVE
À vendre : à 23 km de Rouen, nous vous présentons cette maison de 4 pièces de 112 m² idéalement située dans Vatteville (27430).
Il s'agit d'une maison de 2 niveaux. Son intérieur se divise en quatre chambres, une cuisine et deux salles de bains. Cette maison est neuve.
Le terrain de la propriété s'étend sur 700 m².
La propriété se situe dans un quartier attractif. Des écoles du primaire et du secondaire se trouvent à moins de 10 minutes en voiture, tout comme trois structures d'accueil pour la petite enfance à moins de 10 minutes à pied. Niveau transports en commun, il y a deux gares (Val-de-Reuil et Saint-Pierre-du-Vauvray) à moins de 10 minutes en voiture. Les autoroutes A13 et A154 sont accessibles à moins de 9 km. On trouve des tennis, deux ports de plaisance, trois bassins de natation, trois bibliothèques, des commerces, des boulangeries, des supermarchés, une supérette et des épiceries à quelques minutes. Enfin, le marché Place Poussin a lieu tous les samedis.
Son prix de vente est de 293 600 €.
N'hésitez pas à prendre contact avec Carole GOITA (06-50-10-84-99) pour toute question sur la maison, sur les modalités de vente ou sur les démarches à suivre. Donnez vie à vos projets immobiliers avec Extraco Construction Rénovation Les Andelys.
Mentions légales
Terrain proposé par un partenaire foncier selon disponibilités et autorisation de publicité au prix de 66 000 €. Hors droit d'enregistrement et frais de notaire. Terrain + Maison proposés au prix de 227 600 € (Hors branchements et raccordements, papiers peints, peintures, revêtement de sol dans les chambres. Tarif modifiable sans préavis). Etiquette énergie : A. Différents modèles disponibles pour ce terrain. Assurances et garanties du constructeur (RC professionnelle, décennale, dommage ouvrage, garantie de remboursement de l'acompte, livraison à prix et délai convenu) : https://www.lesmaisonsextraco.fr/informations-legales/.Agence Maisons Extraco de Les Andelys (27700)
- Téléphone :
- 02 32 51 77 46
- Adressse :
- 51 Avenue de la République
27700 Les Andelys, France
