Maison neuve à
Tourny
(27510) Référence :
CG2352954_4
Prix du projet : Maison avec Terrain
prix 331 200 €
- 5 pièces
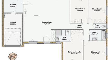
- 4 chambres
- Surface maison 113 m2
Maison de 5 pièces en structure bois (113 m²) à vendre à Vexin-Sur-Epte
EMPLACEMENT PRIVILÉGIÉ - MAISON 5 PIÈCES NEUVE
À vendre : localisée à deux pas de Mantes-la-Jolie, bénéficiant d'un emplacement d'exception dans Vexin-Sur-Epte (27510), notre agence Les Maisons Extraco Les Andelys est ravie de vous présenter cette maison de 5 pièces de plain-pied de 113 m² et de 1 200 m² de terrain. Elle dispose de quatre chambres, d'une cuisine et de deux salles de bains.
Cette maison est neuve.
La maison se trouve dans un quartier prisé. Des écoles (de la maternelle au lycée) sont implantées à moins de 10 minutes en voiture, tout comme deux crèches à moins de 10 minutes à pied. On trouve des tennis, des commerces, des boulangeries, trois supermarchés, des boucheries-charcuteries et quatre épiceries dans les environs.
Elle est à vendre pour la somme de 331 200 €.
Contactez Carole GOITA (tél : 06-50-10-84-99) pour obtenir de plus amples informations sur la maison ou sur les démarches à suivre. Extraco Construction Rénovation Les Andelys vous accompagne à toutes les étapes de votre projet et dans tous vos projets immobiliers.
Mentions légales
Terrain proposé par un partenaire foncier selon disponibilités et autorisation de publicité au prix de 92 000 €. Hors droit d'enregistrement et frais de notaire. Maison proposée, avec un contrat de construction de maison individuelle, dans le cadre de la loi du 19/12/1990, au prix de 239 200 € (Hors branchements et raccordements, papiers peints, peintures, revêtement de sol dans les chambres, qui sont chiffrés dans les travaux qui restent à charge du client. Tarif modifiable sans préavis). Étiquette énergie : A. Différents modèles disponibles pour ce terrain. Assurances et garanties du constructeur comprises (RC professionnelle, décennale, dommage ouvrage).Agence Maisons Extraco de Les Andelys (27700)
- Téléphone :
- 02 32 51 77 46
- Adressse :
- 51 Avenue de la République
27700 Les Andelys, France
