Maison neuve à
Tourny
(27510) Référence :
CG2352954_5
Prix du projet : Maison avec Terrain
prix 270 200 €
- 4 pièces
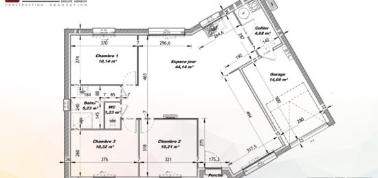
- 3 chambres
- Surface maison 75 m2
VENTE d'une maison T4 en structure bois (75 m²) à Vexin-Sur-Epte
EMPLACEMENT PRIVILÉGIÉ - MAISON 4 PIÈCES NEUVE
À vendre à 18 km de Mantes-la-Jolie, Les Maisons Extraco Les Andelys vous présente cette maison de 4 pièces de plain-pied de 75 m² bénéficiant d'un emplacement d'exception dans Vexin-Sur-Epte (27510). Elle dispose de trois chambres, d'une cuisine et d'une salle de bains.
Le terrain de la propriété s'étend sur 1 200 m².
Cette maison est neuve.
Cette maison se trouve dans un secteur recherché. Il y a des écoles (de la maternelle au lycée) à moins de 10 minutes en voiture, tout comme deux structures d'accueil pour les tout-petits à moins de 10 minutes à pied. On trouve des tennis, des commerces, des boulangeries, trois supermarchés, quatre épiceries et des boucheries-charcuteries à proximité.
Elle est à vendre pour la somme de 270 200 €.
Contactez Carole GOITA (tél : 06-50-10-84-99) pour tout renseignement sur le bien, sur les modalités de vente ou sur les démarches à suivre. Extraco Construction Rénovation Les Andelys est là pour vous accompagner dans tous vos projets immobiliers.
Mentions légales
Terrain proposé par un partenaire foncier selon disponibilités et autorisation de publicité au prix de 92 000 €. Hors droit d'enregistrement et frais de notaire. Maison proposée, avec un contrat de construction de maison individuelle, dans le cadre de la loi du 19/12/1990, au prix de 178 200 € (Hors branchements et raccordements, papiers peints, peintures, revêtement de sol dans les chambres, qui sont chiffrés dans les travaux qui restent à charge du client. Tarif modifiable sans préavis). Étiquette énergie : A. Différents modèles disponibles pour ce terrain. Assurances et garanties du constructeur comprises (RC professionnelle, décennale, dommage ouvrage).Agence Maisons Extraco de Les Andelys (27700)
- Téléphone :
- 02 32 51 77 46
- Adressse :
- 51 Avenue de la République
27700 Les Andelys, France
