Maison neuve à
Vieux-Villez
(27600) Référence :
CG2352987_2
Prix du projet : Maison avec Terrain
prix 231 500 €
- 4 pièces
- 2 chambres
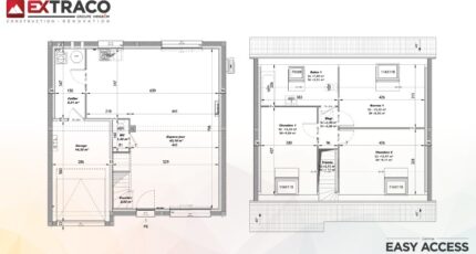
- Surface maison 81 m2
VENTE : maison de 4 pièces (81 m²) à Vieux-Villez
EMPLACEMENT PRIVILÉGIÉ - MAISON 4 PIÈCES NEUVE
À 20 km d'Évreux, nous sommes heureux de vous présenter à vendre, bénéficiant d'un emplacement d'exception dans Vieux-Villez (27600), cette maison de 4 pièces de 81 m² et de 1 300 m² de terrain.
Cette maison possède 2 niveaux. Elle inclut deux chambres, une cuisine et une salle de bains. Cette maison est neuve.
Cette maison se situe dans un quartier recherché. Niveau transports en commun, on trouve les gares Gaillon-Aubevoye et Saint-Pierre-du-Vauvray à moins de 10 minutes en voiture. Les autoroutes A13 et A154 et la nationale N154 sont accessibles à moins de 9 km. Il y a un commerce dans les environs.
Elle est à vendre pour la somme de 231 500 €.
Contactez Carole GOITA (06-50-10-84-99) pour toute information sur la maison.
Mentions légales
Terrain proposé par un partenaire foncier selon disponibilités et autorisation de publicité au prix de 65 000 €. Hors droit d'enregistrement et frais de notaire. Maison proposée, avec un contrat de construction de maison individuelle, dans le cadre de la loi du 19/12/1990, au prix de 166 500 € (Hors branchements et raccordements, papiers peints, peintures, revêtement de sol dans les chambres, qui sont chiffrés dans les travaux qui restent à charge du client. Tarif modifiable sans préavis). Étiquette énergie : A. Différents modèles disponibles pour ce terrain. Assurances et garanties du constructeur comprises (RC professionnelle, décennale, dommage ouvrage).Agence Maisons Extraco de Les Andelys (27700)
- Téléphone :
- 02 32 51 77 46
- Adressse :
- 51 Avenue de la République
27700 Les Andelys, France
