Maison neuve à
Vieux-Villez
(27600) Référence :
CG2352987_4
Prix du projet : Maison avec Terrain
prix 280 500 €
- 4 pièces
- 3 chambres
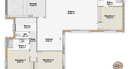
- Surface maison 94 m2
VENTE d'une maison T4 en structure bois (94 m²) à Vieux-Villez
EMPLACEMENT PRIVILÉGIÉ - MAISON 4 PIÈCES NEUVE
À deux pas d'Évreux, Les Maisons Extraco Les Andelys vous présente cette maison de 4 pièces de plain-pied de 94 m² et de 1 300 m² de terrain bénéficiant d'un emplacement d'exception dans Vieux-Villez (27600).
Conçue de plain-pied, elle est composée de trois chambres, d'une cuisine et de deux salles de bains. La maison est neuve.
Cette maison se situe dans un secteur attractif. Niveau transports en commun, il y a les gares Gaillon-Aubevoye et Saint-Pierre-du-Vauvray à moins de 10 minutes en voiture. Les autoroutes A13 et A154 et la nationale N154 sont accessibles à moins de 9 km. On trouve un commerce dans les environs.
Elle est proposée à l'achat pour 280 500 €.
Contactez Carole GOITA (tél : 06-50-10-84-99) pour toute question sur la maison ou sur les modalités de vente. Extraco Construction Rénovation Les Andelys est là pour vous accompagner dans tous vos projets immobiliers.
Mentions légales
Terrain proposé par un partenaire foncier selon disponibilités et autorisation de publicité au prix de 65 000 €. Hors droit d'enregistrement et frais de notaire. Maison proposée, avec un contrat de construction de maison individuelle, dans le cadre de la loi du 19/12/1990, au prix de 215 500 € (Hors branchements et raccordements, papiers peints, peintures, revêtement de sol dans les chambres, qui sont chiffrés dans les travaux qui restent à charge du client. Tarif modifiable sans préavis). Étiquette énergie : A. Différents modèles disponibles pour ce terrain. Assurances et garanties du constructeur comprises (RC professionnelle, décennale, dommage ouvrage).Agence Maisons Extraco de Les Andelys (27700)
- Téléphone :
- 02 32 51 77 46
- Adressse :
- 51 Avenue de la République
27700 Les Andelys, France
