Maison neuve à
Vieux-Villez
(27600) Référence :
CG2352987_5
Prix du projet : Maison avec Terrain
prix 231 500 €
- 4 pièces
- 3 chambres
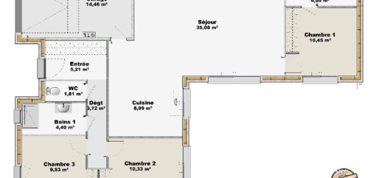
- Surface maison 75 m2
Maison de 4 pièces en structure bois (75 m²) en vente à Vieux-Villez
EMPLACEMENT PRIVILÉGIÉ - MAISON 4 PIÈCES NEUVE
En vente : à 20 km d'Évreux, découvrez, bénéficiant d'un emplacement d'exception dans Vieux-Villez (27600), cette maison de 4 pièces de plain-pied de 75 m².
Son intérieur inclut trois chambres, une cuisine et une salle de bains. La maison est neuve.
Le terrain du bien s'étend sur 1 300 m².
Cette maison est située dans un quartier recherché. Côté transports, on trouve les gares Gaillon-Aubevoye et Saint-Pierre-du-Vauvray à moins de 10 minutes en voiture. Les autoroutes A13 et A154 et la nationale N154 sont accessibles à moins de 9 km. Il y a un commerce à quelques minutes.
Elle est proposée à l'achat pour 231 500 €.
Prenez contact avec Carole GOITA (06-50-10-84-99) pour plus de renseignements sur la propriété, sur les démarches à suivre et sur les modalités de vente. Extraco Construction Rénovation Les Andelys est là pour vous accompagner dans tous vos projets immobiliers.
Mentions légales
Terrain proposé par un partenaire foncier selon disponibilités et autorisation de publicité au prix de 65 000 €. Hors droit d'enregistrement et frais de notaire. Maison proposée, avec un contrat de construction de maison individuelle, dans le cadre de la loi du 19/12/1990, au prix de 166 500 € (Hors branchements et raccordements, papiers peints, peintures, revêtement de sol dans les chambres, qui sont chiffrés dans les travaux qui restent à charge du client. Tarif modifiable sans préavis). Étiquette énergie : A. Différents modèles disponibles pour ce terrain. Assurances et garanties du constructeur comprises (RC professionnelle, décennale, dommage ouvrage).Agence Maisons Extraco de Les Andelys (27700)
- Téléphone :
- 02 32 51 77 46
- Adressse :
- 51 Avenue de la République
27700 Les Andelys, France
