Maison neuve à
Villers-sur-Mer
(14640) Référence :
MP2348875_1
Prix du projet : Maison avec Terrain
prix 370 000 €
- 4 pièces
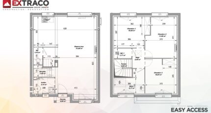
- 3 chambres
- Surface maison 88 m2
Villers-sur-Mer : maison T4 (88 m²) en vente
IDÉALEMENT SITUÉE - MAISON 4 PIÈCES NEUVE
À vendre : à 925 m de la Manche et à quelques kilomètres du Havre, idéalement située dans Villers-sur-Mer (14640), venez découvrir cette maison de 4 pièces de 88 m² et de 545 m² de terrain.
Il s'agit d'une maison de 2 niveaux. Elle inclut trois chambres, une cuisine et une salle de bains. Cette maison est neuve.
La maison se situe dans un secteur convoité. On trouve l'École Primaire Victor Duprez à moins de 10 minutes à pied. Niveau transports, il y a six gares à moins de 10 minutes en voiture. Les autoroutes A13, A132 et A29 sont accessibles à moins de 18 km. On trouve un bassin de natation, un tennis, des commerces, quatre boulangeries, deux supermarchés, un bureau de poste et une épicerie dans les environs.
Elle est proposée à l'achat pour 370 000 €.
Contactez Marion PAIN (tél : 06-67-04-73-85) pour toute question sur le bien.
Mentions légales
Terrain proposé par un partenaire foncier selon disponibilités et autorisation de publicité au prix de 220 000 €. Hors droit d'enregistrement et frais de notaire. Maison proposée, avec un contrat de construction de maison individuelle, dans le cadre de la loi du 19/12/1990, au prix de 150 000 € (Hors branchements et raccordements, papiers peints, peintures, revêtement de sol dans les chambres, qui sont chiffrés dans les travaux qui restent à charge du client. Tarif modifiable sans préavis). Étiquette énergie : A. Différents modèles disponibles pour ce terrain. Assurances et garanties du constructeur comprises (RC professionnelle, décennale, dommage ouvrage).Agence Maisons Extraco de Pont-l'Évêque (14130)
- Téléphone :
- 02 31 64 00 00
- Adressse :
- 20 rue Hamelin
14130 Pont-l'Évêque, France
