Maison neuve à
Villers-sur-Mer
(14640) Référence :
AC2364910S_5
Prix du projet : Maison avec Terrain
prix 299 900 €
- 4 pièces
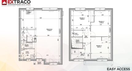
- 3 chambres
- Surface maison 88 m2
VENTE : maison de 4 pièces (88 m²) à Villers-sur-Mer
IDÉALEMENT SITUÉE - MAISON 4 PIÈCES NEUVE
En vente : nous sommes ravis de vous proposer cette maison de 4 pièces de 88 m² idéalement située dans Villers-sur-Mer (14640).
C'est une maison de 2 niveaux. Elle dispose de trois chambres, d'une cuisine et d'une salle de bains. La maison est neuve.
Le terrain de la propriété est de 5 400 m².
La maison est située dans un secteur attractif. Il y a l'École Primaire Victor Duprez à moins de 10 minutes à pied. Niveau transports, on trouve six gares à moins de 10 minutes en voiture. Les autoroutes A13, A132 et A29 sont accessibles à moins de 18 km. Il y a un bassin de natation, un tennis, des commerces, quatre boulangeries, deux supermarchés, un bureau de poste et trois boucheries-charcuteries à proximité.
Son prix de vente est de 299 900 €.
Prenez contact avec notre agence (Angélique CUVILLIERS : 07-63-32-12-06) pour toute information sur la maison ou sur les démarches à suivre.
EXTRACO Construction Rénovation Pont-l'Évêque est là pour vous accompagner dans tous vos projets immobiliers.
Mentions légales
Terrain proposé par un partenaire foncier selon disponibilités et autorisation de publicité au prix de 143 000 €. Hors droit d'enregistrement et frais de notaire. Terrain + Maison proposés au prix de 156 900 € (Hors branchements et raccordements, papiers peints, peintures, revêtement de sol dans les chambres. Tarif modifiable sans préavis). Etiquette énergie : A. Différents modèles disponibles pour ce terrain. Assurances et garanties du constructeur (RC professionnelle, décennale, dommage ouvrage, garantie de remboursement de l'acompte, livraison à prix et délai convenu) : https://www.lesmaisonsextraco.fr/informations-legales/.Agence Maisons Extraco de Pont-l'Évêque (14130)
- Téléphone :
- 02 31 64 00 00
- Adressse :
- 20 rue Hamelin
14130 Pont-l'Évêque, France
