Maison neuve à
Arrest
(80820) Référence :
DD_eu28_04-1_1
Prix du projet : Maison avec Terrain
prix 173 600 €
- 4 pièces
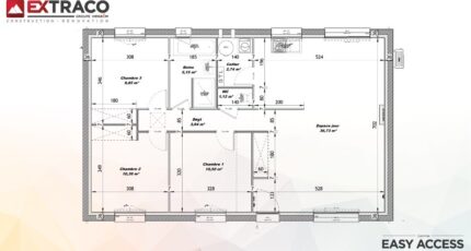
- 3 chambres
- Surface maison 80 m2
VENTE d'une maison de 4 pièces (80 m²) à Arrest
MAISON 4 PIÈCES NEUVE
En vente : localisée à 15 km de la Manche, nous vous présentons cette maison de 4 pièces de plain-pied de 80 m² à Arrest (80820). Elle se divise en trois chambres, une cuisine et une salle de bains.
Le terrain de cette maison s'étend sur 766 m².
Cette maison est neuve.
Une école primaire est implantée dans le quartier. Côté transports en commun, il y a la gare Noyelles-sur-Mer à moins de 10 minutes en voiture. Les autoroutes A28 et A16 sont accessibles à moins de 14 km. On trouve une bibliothèque et une boucherie-charcuterie à proximité.
Son prix de vente est de 173 600 €.
Contactez Delphine DERULLES (tél : 06-67-13-79-40) pour toute question sur la propriété, sur les modalités de vente ou sur les démarches à suivre. Les Maisons Extraco Eu est là pour vous accompagner dans tous vos projets immobiliers.
Mentions légales
Terrain proposé par un partenaire foncier selon disponibilités et autorisation de publicité au prix de 45 960 €. Hors droit d'enregistrement et frais de notaire. Maison proposée, avec un contrat de construction de maison individuelle, dans le cadre de la loi du 19/12/1990, au prix de 127 640 € (Hors branchements et raccordements, papiers peints, peintures, revêtement de sol dans les chambres, qui sont chiffrés dans les travaux qui restent à charge du client. Tarif modifiable sans préavis). Étiquette énergie : A. Différents modèles disponibles pour ce terrain. Assurances et garanties du constructeur comprises (RC professionnelle, décennale, dommage ouvrage).Agence Maisons Extraco de Eu (76260)
- Téléphone :
- 02 35 82 68 79
- Adressse :
- 4 rue Abbaye
76260 Eu, France
