Maison neuve à
Arrest
(80820) Référence :
DD_eu43_05-3_3
Prix du projet : Maison avec Terrain
prix 187 900 €
- 4 pièces
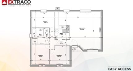
- 3 chambres
- Surface maison 84 m2
Maison T4 (84 m²) à vendre à Arrest
MAISON 4 PIÈCES NEUVE
À vendre : à 15 km de la Manche, Les Maisons Extraco Eu vous propose à Arrest (80820), cette maison de 4 pièces de plain-pied de 84 m² et de 809 m² de terrain. Elle propose trois chambres, une cuisine et une salle de bains.
La maison est neuve.
Une école primaire est implantée dans le quartier. Niveau transports en commun, il y a la gare Noyelles-sur-Mer à moins de 10 minutes en voiture. Les autoroutes A28 et A16 sont accessibles à moins de 14 km. On trouve une bibliothèque et une boucherie-charcuterie à proximité.
Elle est proposée à l'achat pour 187 900 €.
Prenez contact avec notre agence (DERULLES Delphine : 06-67-13-79-40) pour tout renseignement sur cette maison. Concrétisez vos projets immobiliers avec Les Maisons Extraco Eu.
Mentions légales
Terrain proposé par un partenaire foncier selon disponibilités et autorisation de publicité au prix de 48 540 €. Hors droit d'enregistrement et frais de notaire. Maison proposée, avec un contrat de construction de maison individuelle, dans le cadre de la loi du 19/12/1990, au prix de 139 360 € (Hors branchements et raccordements, papiers peints, peintures, revêtement de sol dans les chambres, qui sont chiffrés dans les travaux qui restent à charge du client. Tarif modifiable sans préavis). Étiquette énergie : A. Différents modèles disponibles pour ce terrain. Assurances et garanties du constructeur comprises (RC professionnelle, décennale, dommage ouvrage).Agence Maisons Extraco de Eu (76260)
- Téléphone :
- 02 35 82 68 79
- Adressse :
- 4 rue Abbaye
76260 Eu, France
