Maison neuve à
Arrest
(80820) Référence :
DD_eu44_16-0_1
Prix du projet : Maison avec Terrain
prix 162 400 €
- 3 pièces
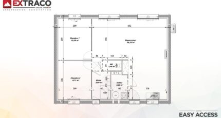
- 2 chambres
- Surface maison 65 m2
Arrest : maison F3 (65 m²) à vendre
MAISON 3 PIÈCES NEUVE
À 15 km de la Manche, nous sommes heureux de vous proposer cette maison de 3 pièces de plain-pied de 65 m² à vendre à Arrest (80820). Conçue de plain-pied, elle est composée de deux chambres, d'une cuisine et d'une salle de bains.
Le terrain de la propriété est de 809 m².
Cette maison est neuve.
Il y a une école primaire dans le quartier. Niveau transports en commun, on trouve la gare Noyelles-sur-Mer à moins de 10 minutes en voiture. Les autoroutes A28 et A16 sont accessibles à moins de 14 km. Il y a une bibliothèque et une boucherie-charcuterie à proximité de la maison.
Elle est proposée à l'achat pour 162 400 €.
Prenez contact avec Delphine DERULLES (tél : 06-67-13-79-40) pour toute information sur cette maison ou sur les modalités de vente.
Mentions légales
Terrain proposé par un partenaire foncier selon disponibilités et autorisation de publicité au prix de 48 540 €. Hors droit d'enregistrement et frais de notaire. Maison proposée, avec un contrat de construction de maison individuelle, dans le cadre de la loi du 19/12/1990, au prix de 113 860 € (Hors branchements et raccordements, papiers peints, peintures, revêtement de sol dans les chambres, qui sont chiffrés dans les travaux qui restent à charge du client. Tarif modifiable sans préavis). Étiquette énergie : A. Différents modèles disponibles pour ce terrain. Assurances et garanties du constructeur comprises (RC professionnelle, décennale, dommage ouvrage).Agence Maisons Extraco de Eu (76260)
- Téléphone :
- 02 35 82 68 79
- Adressse :
- 4 rue Abbaye
76260 Eu, France
