Maison neuve à
Aviron
(27930) Référence :
OS2317621_4
Prix du projet : Maison avec Terrain
prix 238 800 €
- 5 pièces
- 4 chambres
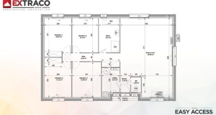
- Surface maison 105 m2
Aviron : maison F5 (105 m²) en vente
IDÉALEMENT SITUÉE - MAISON 5 PIÈCES NEUVE
En vente : à quelques kilomètres d'Évreux, idéalement située dans Aviron (27930), nous sommes ravis de vous présenter cette maison de 5 pièces de plain-pied de 105 m².
Son intérieur dispose de quatre chambres, d'une cuisine et d'une salle de bains. Cette maison est neuve.
Le terrain de la propriété s'étend sur 1 731 m².
Cette maison est située dans un quartier convoité. Une école primaire y est implantée. Niveau transports en commun, il y a les gares Évreux Normandie et La Bonneville-sur-Iton à moins de 10 minutes en voiture. Les nationales N13 et N154 sont accessibles à moins de 4 km.
Elle est proposée à l'achat pour 238 800 €.
N'hésitez pas à prendre contact avec Oumayma SONMEZ (06-68-92-00-86) pour plus de renseignements sur la maison ou sur les démarches à suivre. Les Maisons Extraco Gravigny est là pour vous accompagner à toutes les étapes de votre projet.
Mentions légales
Terrain proposé par un partenaire foncier selon disponibilités et autorisation de publicité au prix de 87 000 €. Hors droit d'enregistrement et frais de notaire. Maison proposée, avec un contrat de construction de maison individuelle, dans le cadre de la loi du 19/12/1990, au prix de 151 800 € (Hors branchements et raccordements, papiers peints, peintures, revêtement de sol dans les chambres, qui sont chiffrés dans les travaux qui restent à charge du client. Tarif modifiable sans préavis). Étiquette énergie : A. Différents modèles disponibles pour ce terrain. Assurances et garanties du constructeur comprises (RC professionnelle, décennale, dommage ouvrage).Agence Maisons Extraco de Gravigny (27930)
- Téléphone :
- 02 32 31 20 44
- Adressse :
- 165 Avenue Aristide Briand
27930 Gravigny, France
