Maison neuve à 
  Beuzeville
 (27210)  Référence :
 JP2324438_1 
Prix du projet : Maison avec Terrain
prix 228 000 €
- 4 pièces
- 2 chambres
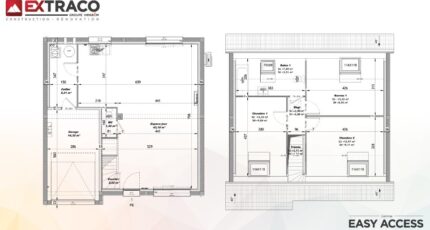
- Surface maison 81 m2
Maison de 4 pièces (81 m²) à vendre à Beuzeville
IDÉALEMENT SITUÉE - MAISON 4 PIÈCES NEUVE
À vendre à 11 km de la Manche et à quelques kilomètres du Havre, idéalement située dans Beuzeville (27210), Les Maisons Extraco Pont-Audemer vous présente cette maison de 4 pièces de 81 m² et de 718 m² de terrain.
Il s'agit d'une maison de 2 niveaux. Son intérieur propose deux chambres, une cuisine et une salle de bains. Cette maison est neuve.
La maison est située dans un quartier prisé. Trois établissements scolaires sont implantés à moins de 10 minutes à pied,, comme le Collège Jacques Brel ou l'École Élémentaire Pierre Mendès-France, tout comme une structure d'accueil pour les tout-petits. Les autoroutes A13 et A29 sont accessibles à moins de 9 km. On trouve un tennis, des boulangeries, des commerces, deux supermarchés, quatre boucheries-charcuteries et une supérette à quelques minutes du logement.
Elle est proposée à l'achat pour 228 000 €.
Prenez contact avec Juliette PETIT (tél : 06-66-70-24-56) pour obtenir de plus amples informations sur la maison.
Mentions légales
Terrain proposé par un partenaire foncier selon disponibilités et autorisation de publicité au prix de 69 500 €. Hors droit d'enregistrement et frais de notaire. Maison proposée, avec un contrat de construction de maison individuelle, dans le cadre de la loi du 19/12/1990, au prix de 158 500 € (Hors branchements et raccordements, papiers peints, peintures, revêtement de sol dans les chambres, qui sont chiffrés dans les travaux qui restent à charge du client. Tarif modifiable sans préavis). Étiquette énergie : A. Différents modèles disponibles pour ce terrain. Assurances et garanties du constructeur comprises (RC professionnelle, décennale, dommage ouvrage).Agence Maisons Extraco de Pont-Audemer (27500)
- Téléphone :
- 02 32 41 95 72
- Adressse :
-  50 rue de la République
 27500 Pont-Audemer, France
 
  
  
  
 