Maison neuve à 
  Beuzeville
 (27210)  Référence :
 JP2324438_3 
Prix du projet : Maison avec Terrain
prix 236 000 €
- 5 pièces
- 4 chambres
- Surface maison 105 m2
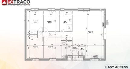
VENTE : maison T5 (105 m²) à Beuzeville
IDÉALEMENT SITUÉE - MAISON 5 PIÈCES NEUVE
À 11 km de la Manche et à quelques kilomètres du Havre, nous vous présentons à vendre, idéalement située dans Beuzeville (27210), cette maison de 5 pièces de plain-pied de 105 m² et de 718 m² de terrain. Conçue de plain-pied, elle offre quatre chambres, une cuisine et une salle de bains.
Cette maison est neuve.
La maison se situe dans un quartier prisé. On trouve trois établissements scolaires à moins de 10 minutes à pied, dont le Collège Jacques Brel et l'École Élémentaire Pierre Mendès-France et une crèche. Les autoroutes A13 et A29 sont accessibles à moins de 9 km. Il y a un tennis, des boulangeries, des commerces, deux supermarchés, une poissonnerie et une supérette dans les environs.
Elle est proposée à l'achat pour 236 000 €.
Prenez contact avec Juliette PETIT (06-66-70-24-56) pour toute question sur la maison.
Mentions légales
Terrain proposé par un partenaire foncier selon disponibilités et autorisation de publicité au prix de 69 500 €. Hors droit d'enregistrement et frais de notaire. Maison proposée, avec un contrat de construction de maison individuelle, dans le cadre de la loi du 19/12/1990, au prix de 166 500 € (Hors branchements et raccordements, papiers peints, peintures, revêtement de sol dans les chambres, qui sont chiffrés dans les travaux qui restent à charge du client. Tarif modifiable sans préavis). Étiquette énergie : A. Différents modèles disponibles pour ce terrain. Assurances et garanties du constructeur comprises (RC professionnelle, décennale, dommage ouvrage).Agence Maisons Extraco de Pont-Audemer (27500)
- Téléphone :
- 02 32 41 95 72
- Adressse :
-  50 rue de la République
 27500 Pont-Audemer, France
 
  
  
  
 