Maison neuve à
Bézu-la-Forêt
(27480) Référence :
CG2318055_1
Prix du projet : Maison avec Terrain
prix 204 600 €
- 4 pièces
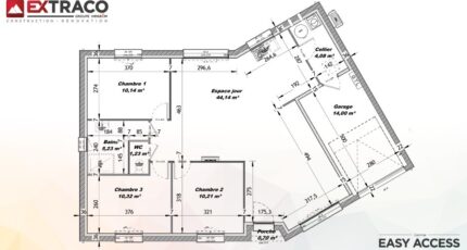
- 3 chambres
- Surface maison 85 m2
VENTE : maison F4 (85 m²) à Bézu-la-Forêt
EMPLACEMENT PRIVILÉGIÉ - MAISON 4 PIÈCES NEUVE
En vente : votre agence Extraco Construction Rénovation Les Andelys est heureuse de vous proposer cette maison de 4 pièces de plain-pied de 85 m² bénéficiant d'un emplacement privilégié dans Bézu-la-Forêt (27480).
Son intérieur est composé de trois chambres, d'une cuisine et d'une salle de bains. Cette maison est neuve.
Le terrain du bien est de 1 000 m².
Cette maison se trouve dans un secteur recherché. Il y a des écoles maternelles et élémentaires à moins de 10 minutes en voiture, tout comme dont l'École Primaire Jean Moulin, l'École Élémentaire Octave Pellerin et l'École Maternelle la Lévrière. On trouve deux bibliothèques, deux tennis, des commerces, quatre boulangeries, deux boucheries-charcuteries et une épicerie dans les environs.
Son prix de vente est de 204 600 €.
Prenez contact avec Carole GOITA (06-50-10-84-99) pour toute question sur la maison ou sur les modalités de vente.
Mentions légales
Terrain proposé par un partenaire foncier selon disponibilités et autorisation de publicité au prix de 36 000 €. Hors droit d'enregistrement et frais de notaire. Maison proposée, avec un contrat de construction de maison individuelle, dans le cadre de la loi du 19/12/1990, au prix de 168 600 € (Hors branchements et raccordements, papiers peints, peintures, revêtement de sol dans les chambres, qui sont chiffrés dans les travaux qui restent à charge du client. Tarif modifiable sans préavis). Étiquette énergie : A. Différents modèles disponibles pour ce terrain. Assurances et garanties du constructeur comprises (RC professionnelle, décennale, dommage ouvrage).Agence Maisons Extraco de Les Andelys (27700)
- Téléphone :
- 02 32 51 77 46
- Adressse :
- 51 Avenue de la République
27700 Les Andelys, France
