Maison neuve à
Boismont
(80230) Référence :
DD_eu28_02-1_1
Prix du projet : Maison avec Terrain
prix 203 400 €
- 4 pièces
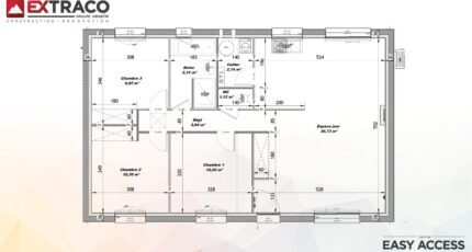
- 3 chambres
- Surface maison 80 m2
Maison de 4 pièces (80 m²) en vente à Boismont
MAISON 4 PIÈCES NEUVE
à vendre à Boismont (80230), ayez le coup de coeur pour cette maison de 4 pièces de plain-pied de 80 m². Elle compte trois chambres, une cuisine et une salle de bains.
Le terrain du bien est de 575 m².
La maison est neuve.
Il y a une école élémentaire dans le quartier. Niveau transports, on trouve la gare Noyelles-sur-Mer à moins de 10 minutes en voiture. Il y a une bibliothèque à quelques minutes à peine.
Elle est proposée à l'achat pour 203 400 €.
Contactez Delphine DERULLES (06-67-13-79-40) pour toute information sur cette propriété, sur les modalités de vente ou sur les démarches à suivre. Les Maisons Extraco Eu vous accompagne dans tous vos projets immobiliers et à toutes les étapes de l'achat.
Mentions légales
Terrain proposé par un partenaire foncier selon disponibilités et autorisation de publicité au prix de 74 000 €. Hors droit d'enregistrement et frais de notaire. Maison proposée, avec un contrat de construction de maison individuelle, dans le cadre de la loi du 19/12/1990, au prix de 129 400 € (Hors branchements et raccordements, papiers peints, peintures, revêtement de sol dans les chambres, qui sont chiffrés dans les travaux qui restent à charge du client. Tarif modifiable sans préavis). Étiquette énergie : A. Différents modèles disponibles pour ce terrain. Assurances et garanties du constructeur comprises (RC professionnelle, décennale, dommage ouvrage).Agence Maisons Extraco de Eu (76260)
- Téléphone :
- 02 35 82 68 79
- Adressse :
- 4 rue Abbaye
76260 Eu, France
