Maison neuve à
Bouillancourt-en-Séry
(80220) Référence :
DD_eu43_07-1_3
Prix du projet : Maison avec Terrain
prix 168 400 €
- 4 pièces
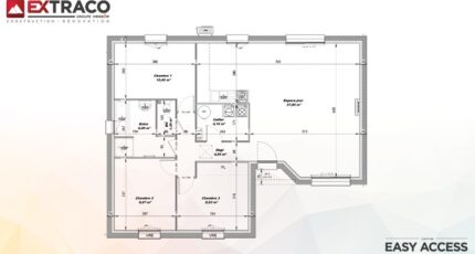
- 3 chambres
- Surface maison 84 m2
Bouillancourt-en-Séry : maison de 4 pièces (84 m²) à vendre
MAISON 4 PIÈCES NEUVE
À 26 km de la Manche, votre agence Les Maisons Extraco Eu est ravie de vous présenter cette maison de 4 pièces de plain-pied de 84 m² et de 842 m² de terrain à Bouillancourt-en-Séry (80220). Son intérieur comporte trois chambres, une cuisine et une salle de bains.
La maison est neuve.
Il y a une école primaire dans le quartier. Côté transports en commun, on trouve deux gares (Blangy-sur-Bresle et Longroy-Gamaches) à moins de 10 minutes en voiture. Il y a un accès à l'autoroute A28 à 4 km.
Son prix de vente est de 168 400 €.
Contactez Delphine DERULLES (06-67-13-79-40) pour toute question sur cette propriété. Donnez vie à vos projets immobiliers avec Les Maisons Extraco Eu.
Mentions légales
Terrain proposé par un partenaire foncier selon disponibilités et autorisation de publicité au prix de 29 470 €. Hors droit d'enregistrement et frais de notaire. Maison proposée, avec un contrat de construction de maison individuelle, dans le cadre de la loi du 19/12/1990, au prix de 138 930 € (Hors branchements et raccordements, papiers peints, peintures, revêtement de sol dans les chambres, qui sont chiffrés dans les travaux qui restent à charge du client. Tarif modifiable sans préavis). Étiquette énergie : A. Différents modèles disponibles pour ce terrain. Assurances et garanties du constructeur comprises (RC professionnelle, décennale, dommage ouvrage).Agence Maisons Extraco de Eu (76260)
- Téléphone :
- 02 35 82 68 79
- Adressse :
- 4 rue Abbaye
76260 Eu, France
