Maison neuve à
Boulleville
(27210) Référence :
JP2316222_1
Prix du projet : Maison avec Terrain
prix 213 000 €
- 4 pièces
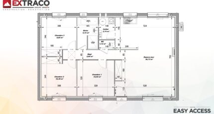
- 3 chambres
- Surface maison 80 m2
Boulleville : maison de 4 pièces (80 m²) en vente
IDÉALEMENT SITUÉE - MAISON 4 PIÈCES NEUVE
À vendre : à 8 km de la Manche et à deux pas du Havre, nous sommes heureux de vous présenter cette maison de 4 pièces de plain-pied de 80 m² et de 947 m² de terrain idéalement située dans Boulleville (27210).
Conçue de plain-pied, elle offre trois chambres, une cuisine et une salle de bains. Cette maison est neuve.
La maison est située dans un quartier recherché. Une école élémentaire y est implantée. Les autoroutes A13 et A29 sont accessibles à moins de 10 km. On trouve un tennis et un commerce à proximité du logement.
Son prix de vente est de 213 000 €.
Contactez notre agence (Juliette PETIT : 06-66-70-24-56) pour toute information sur la propriété ou sur les démarches à suivre.
Mentions légales
Terrain proposé par un partenaire foncier selon disponibilités et autorisation de publicité au prix de 69 500 €. Hors droit d'enregistrement et frais de notaire. Maison proposée, avec un contrat de construction de maison individuelle, dans le cadre de la loi du 19/12/1990, au prix de 143 500 € (Hors branchements et raccordements, papiers peints, peintures, revêtement de sol dans les chambres, qui sont chiffrés dans les travaux qui restent à charge du client. Tarif modifiable sans préavis). Étiquette énergie : A. Différents modèles disponibles pour ce terrain. Assurances et garanties du constructeur comprises (RC professionnelle, décennale, dommage ouvrage).Agence Maisons Extraco de Pont-Audemer (27500)
- Téléphone :
- 02 32 41 95 72
- Adressse :
- 50 rue de la République
27500 Pont-Audemer, France
