Maison neuve à
Bourneville
(27500) Référence :
JP2317942_3
Prix du projet : Maison avec Terrain
prix 192 000 €
- 5 pièces
- 4 chambres
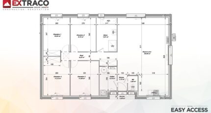
- Surface maison 105 m2
VENTE : maison de 5 pièces (105 m²) à Bourneville
MAISON 5 PIÈCES NEUVE
À vendre : à 18 km de la Manche, nous sommes heureux de vous présenter cette maison de 5 pièces de plain-pied de 105 m² à Bourneville (27500).
Son intérieur est composé de quatre chambres, d'une cuisine et d'une salle de bains. La maison est neuve.
Le terrain du bien est de 423 m².
Il y a l'École Primaire Bourneville à moins de 10 minutes à pied. Les autoroutes A13 et A131 sont accessibles à moins de 2 km. On trouve deux commerces, une boulangerie, une boucherie-charcuterie et un bureau de poste à quelques minutes.
Il est proposé à l'achat pour 192 000 €.
N'hésitez pas à prendre contact avec Juliette PETIT (tél : 06-66-70-24-56) pour toute question sur la maison, sur les modalités de vente ou sur les démarches à suivre. Les Maisons Extraco Pont-Audemer vous accompagne à toutes les étapes de l'achat et dans tous vos projets immobiliers.
Mentions légales
Terrain proposé par un partenaire foncier selon disponibilités et autorisation de publicité au prix de 38 000 €. Hors droit d'enregistrement et frais de notaire. Maison proposée, avec un contrat de construction de maison individuelle, dans le cadre de la loi du 19/12/1990, au prix de 154 000 € (Hors branchements et raccordements, papiers peints, peintures, revêtement de sol dans les chambres, qui sont chiffrés dans les travaux qui restent à charge du client. Tarif modifiable sans préavis). Étiquette énergie : A. Différents modèles disponibles pour ce terrain. Assurances et garanties du constructeur comprises (RC professionnelle, décennale, dommage ouvrage).Agence Maisons Extraco de Pont-Audemer (27500)
- Téléphone :
- 02 32 41 95 72
- Adressse :
- 50 rue de la République
27500 Pont-Audemer, France
